3 Appartamenti mono e mini in vendita a Cabras
Pagina: 1 di 1
1
Appartamento | € 67.680
Cabras

1

1

66
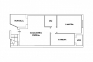
Quest'immobile viene venduto tramite asta online.scheda in allestimento. Per dettagli consultare i documenti allegatiappartamento sito a cabras (or), prima periferia lungo via tharr...
Appartamento | € 77.000
Oristano

1

1

108
Oristano: a pochissimi passi dal centro, appartamento bilocale in nuda proprietà. internamente composto da ingresso, soggiorno con cucina a vista, ripostiglio e bagn...
Appartamento | € 115.000
Oristano

1

1

85
Donigala fenughedu: in piccola palazzina di sole quattro unità abitative, comodo appartamento al secondo ed ultimo piano con annesso sottotetto di circa 60 mq n...
Pagina: 1 di 1 di 3 annunci
1











