home page > Annunci immobiliari in Italia > Veneto > Treviso > Maserada sul Piave > appartamenti in vendita > Scheda immobile

Appartamento in vendita a Maserada sul Piave

COMPILA IL MODULO SOTTOSTANTE PER RICEVERE MAGGIORI INFORMAZIONI







Invia la richiesta ad altre agenzie
Accetto il trattamento dei miei dati



Asteaffari.com

Viale g. E l. Olivi 38
31100 Treviso

04221781118    Riferimenti: Stefano Dalto

Maserada sul Piave
Prezzo: € 68.475
F
3
1
115
1



Descrizione:
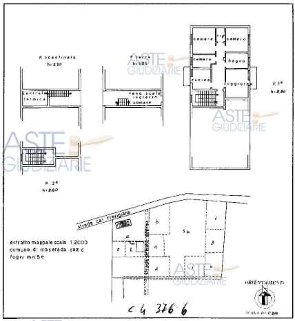
Rif. A.a.0-23 vendita all'asta - appartamento al 1° piano con garage in data 20 febbraio 2026 descrizione immobili : trattasi di un appartamento ubicato al piano primo con garage facente parte di un condominio sito nel comune di maserada (tv) località varago. L'unità immobiliare, della superficie commerciale complessiva di mq.115, è composta da ingresso, cucina, soggiorno, camera-studio, bagno, n.2 camere, ripostiglio, e terrazzo. Completa la proprietà un'autorimessa al piano seminterrato. prezzo minimo base asta : da euro 68.475,00 l'immobile viene venduto tramite asta giudiziaria, ed il prezzo indicato si riferisce al prezzo minimo accettato per la partecipazione all'asta.aste-affari fornisce un servizio di assistenza e consulenza tecnica, legale, fiscale e finanziaria su acquisti all'asta e affari immobiliari, al fine di rendere più facile e sicuro l'acquisto di un immobile proveniente dal mercato giudiziario oppure da occasioni presenti sul mercato immobiliare.analisi di fattibilità, tecnica, burocratica, finanziaria, legale, esame problematiche e vincoli, conteggio costi accessori ed occulti, assistenza in tutte le fasi della procedura fino alla consegna delle chiavi dell'immobile.l'acquisto può essere finanziato tramite mutuo per info aggiuntive, prenotazione visione, consulenza ed assistenza su asta :studio di consulenza : 'aste-affari.com'info: sei un debitore ? chiamaci ! abbiamo soluzioni personalizzate anche per te.




Caratteristiche immobile:
Codice inserzione: 1768191100
Rif. Annuncio: A.A.0-23
Provincia: Treviso
Comune: Maserada sul Piave
Zona: Varago  
Superficie (Mq) : 115 Mq.
Tipo immobile: Appartamento
Anno costruzione/ristrutturazione: 1967
Piano: 1
Camere: 3
Arredato:
Garage: Singolo
Tipologia giardino : Condominiale
Bagni: 1
Terrazze: 1

Costi:
Prezzo € 68.475


Efficienza energetica:
Classe energetica: F
Riscaldamento: autonomo