home page > Annunci immobiliari in Italia > Veneto > Treviso > Meduna di Livenza > appartamenti in vendita > Scheda immobile

Appartamento in vendita a Meduna di Livenza

COMPILA IL MODULO SOTTOSTANTE PER RICEVERE MAGGIORI INFORMAZIONI







Invia la richiesta ad altre agenzie
Accetto il trattamento dei miei dati



Jbc immobiliare oderzo

Via roma 34
31046 Oderzo (TV)

3331973525

Meduna di Livenza
Prezzo: € 148.000
3
1
110
Piano terra
1



Descrizione:
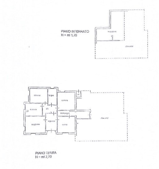
Meduna di livenza - (tv)proponiamo in vendita, a circa 5 km dal centro di meduna di livenza, appartamento al piano terra all'interno di un complesso con tre unità abitative, l'immobile si dispone come segue: l'ampio ingresso divide il soggiorno dalla cucina abitabile con accesso diretto ad un disimpegno che conduce al locale termico, disimpegno zona notte, tre camere di cui una matrimoniale ed un bagno finestrato. L'unità è stata oggetto di ristrutturazione nel 2010, sono stati riposati i pavimenti, riqualificato il bagno. Nel 2021 sono stati installati i serramenti in pvc e nel 2022 sono state sistemati i pluviali ed il tetto. Completano l'immobile un box auto, una cantina ed un magazzino. Lo spazio esterno, compreso il giardino sono invece comuni alle tre unità, c'è la possibilità di frazionare lo scoperto con spese a proprio carico. Venite a trovarci ed a scoprire questo immobile nel dettaglio, ci trovi in:via roma 34 ad oderzo (tv) - piazza drago 18 a a jesolo (ve).




Caratteristiche immobile:
Codice inserzione: 1761188120
Rif. Annuncio: 109
Provincia: Treviso
Comune: Meduna di Livenza
Superficie (Mq) : 110 Mq.
Tipo immobile: Appartamento
Stato immobile: usato
Anno costruzione/ristrutturazione: 1983
Piano: Piano terra
Camere: 3
Arredato:
Garage: Singolo
Posti auto scoperti: 1 posto auto
Tipologia giardino : Condominiale
Bagni: 1 + lavanderia

Costi:
Prezzo € 148.000


Efficienza energetica:
Riscaldamento: autonomo