home page > Annunci immobiliari in Italia > Veneto > Treviso > Mogliano Veneto > appartamenti in vendita > Scheda immobile

Appartamento in vendita a Mogliano Veneto

COMPILA IL MODULO SOTTOSTANTE PER RICEVERE MAGGIORI INFORMAZIONI







Invia la richiesta ad altre agenzie
Accetto il trattamento dei miei dati



Moschini immobiliare gl di moschini gianluca & c. S.a.s.

Via costante gris, 27
31021 Mogliano Veneto (TV)

041455345    0415904527

Mogliano Veneto
Prezzo: € 329.000
2
2
93
1



Descrizione:
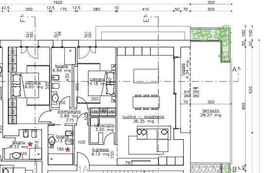
Proponiamo in esclusiva, centralissimi nuovi appartamenti, a due passi dalla piazza dei caduti di mogliano, in particolare al piano primo, appartamento composto da spazioso soggiorno con angolo cottura, due belle camere da letto, due bagni, locale stireria/lavanderia, grande terrazza coperta di 32 mq, ampio garage al piano terra di 28 mq, euro 329.000,00 ottime finiture, classe a4, per info 'moschini immobiliare gl di moschini gianluca', via costante gris 27, cell classe energetica: a4




Caratteristiche immobile:
Codice inserzione: 1770350345
Rif. Annuncio: 098
Provincia: Treviso
Comune: Mogliano Veneto
Superficie (Mq) : 93 Mq.
Tipo immobile: Appartamento
Stato immobile: nuovo
Piano: 1
Camere: 2
Garage: Singolo
Bagni: 2
Terrazze: 1

Costi:
Prezzo € 329.000


Efficienza energetica: