home page > Annunci immobiliari in Italia > Veneto > Treviso > Pederobba > appartamenti in vendita > Scheda immobile

Appartamento in vendita a Pederobba

COMPILA IL MODULO SOTTOSTANTE PER RICEVERE MAGGIORI INFORMAZIONI







Invia la richiesta ad altre agenzie
Accetto il trattamento dei miei dati



Asteaffari.com

Viale g. E l. Olivi 38
31100 Treviso

04221781118    Riferimenti: Stefano Dalto

Pederobba
Prezzo: € 51.000
F
3
2
80
2



Descrizione:
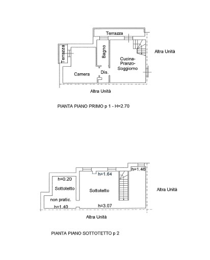
Rif. A.a.245-24vendita all'asta - appartamento su due livelli con garage in data 5 novembre 2025descrizione: trattasi di un appartamento posto al primo piano e secondo, all'interno del complesso residenziale 'cal munera', sito nel comune di pederobba (tv) frazione levada. All'unità immobiliare, della superficie commerciale complessiva di mq.80, si accede tramite un vano scale condominiale; al piano primo è composto da: ingresso - cucina/soggiorno, disimpegno, una camera, due terrazzini, bagno e le scale per accedere al piano secondo/sottotetto dove si trovano due locali ad uso camere, un bagno e un locale sottotetto non praticabile. Completa la proprietà un garage al piano interrato di mq. 15, al quale si accede dal vano scale interno e, tramite una rampa carrabile, direttamente dall'area scoperta condominiale.l'immobile viene venduto tramite asta giudiziaria, ed il prezzo indicato si riferisce al prezzo minimo accettato per la partecipazione all'asta.aste-affari fornisce un servizio di assistenza e consulenza tecnica, legale, fiscale e finanziaria su acquisti all'asta e affari immobiliari, al fine di rendere più facile e sicuro l'acquisto di un immobile proveniente dal mercato giudiziario oppure da occasioni presenti sul mercato immobiliare.analisi di fattibilità, tecnica, burocratica, finanziaria, legale, esame problematiche e vincoli, conteggio costi accessori ed occulti, assistenza in tutte le fasi della procedura fino alla consegna delle chiavi dell'immobile.l'acquisto può essere finanziato tramite mutuo, e, ove possibile anche in pre-asta tramite procedura di saldo-stralcio.prezzo minimo base asta : da euro 51.000,00per info aggiuntive, prenotazione visione, consulenza ed assistenza su asta :studio di consulenza : 'aste-affari.com'info: un debitore ? chiamaci ! abbiamo soluzioni personalizzate anche per te.




Caratteristiche immobile:
Codice inserzione: 1759114159
Rif. Annuncio: A.A. 245-24
Provincia: Treviso
Comune: Pederobba
Zona: Levada  
Superficie (Mq) : 80 Mq.
Tipo immobile: Appartamento
Stato immobile: usato
Anno costruzione/ristrutturazione: 2006
Piano: 2
Camere: 3
Arredato:
Garage: Singolo
Tipologia giardino : Condominiale
Bagni: 2
Terrazze: 2

Costi:
Prezzo € 51.000


Efficienza energetica:
Classe energetica: F
Riscaldamento: autonomo