home page > Annunci immobiliari in Italia > Veneto > Treviso > Preganziol > appartamenti in vendita > Scheda immobile

Appartamento in vendita a Preganziol

COMPILA IL MODULO SOTTOSTANTE PER RICEVERE MAGGIORI INFORMAZIONI







Invia la richiesta ad altre agenzie
Accetto il trattamento dei miei dati



Roveda immobiliare snc

Piazza leonardo da vinci 5
31030 Casier (TV)

0422.1916721    Riferimenti: Roveda Immobiliare

Preganziol
Prezzo: € 399.000
A4
3
2
138
3
1



Descrizione:
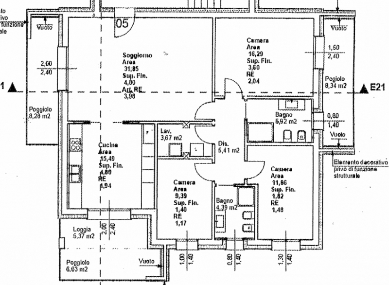
Preganziol riferimento: pr11l'agenzia roveda immobiliare ha il piacere di presentarvi, in una via residenziale situata in zona centrale di preganziol, questa nuova costruzione di sole sette unità abitative con ascensore distribuite su tre piani.la posizione è particolarmente strategica, con tutti i principali servizi raggiungibili comodamente a piedi e scuole nelle immediate vicinanze, rendendo l'immobile ideale per famiglie e per chi desidera vivere il paese senza rinunciare alla tranquillità.l'edificio è progettato per garantire elevato comfort abitativo ed efficienza energetica, raggiungendo la classe a4. le abitazioni dispongono di impianti di ultima generazione come riscaldamento a pavimento, pompa di calore, climatizzazione canalizzata, vmc e fotovoltaico da 3 kw, l'isolamento è assicurato da cappotto esterno da 17 cm e serramenti in legno con triplo vetro. completano le dotazioni tapparelle elettriche e predisposizione allarme.l' immobile sito al piano attico è cosù distribuito: ingresso su ampia zona giorno openspace di circa 48 mq., un ambiente moderno e luminoso valorizzato da ampie vetrate che lasciano entrare la luce naturale e accompagnano verso il terrazzo abitabile, ideale come estensione della zona living nelle stagioni più miti.un funzionale disimpegno, con spazio dedicato ad armadiatura a muro, conduce alla zona notte dove trovano spazio una camera matrimoniale di 16,29 mq, una camera doppia di 11,86 mq, una camera singola e due bagni finestrati, curati nei dettagli e ben distribuiti.completa la proprietà un garage di 18 mq, che aggiunge praticità e un posto auto all'interno della proprietà.consegna: 2/3 mesi




Caratteristiche immobile:
Codice inserzione: 1769768218
Rif. Annuncio: PR11
Provincia: Treviso
Comune: Preganziol
Superficie (Mq) : 138 Mq.
Tipo immobile: Appartamento
Stato immobile: nuovo
Anno costruzione/ristrutturazione: 2026
Piano: 3
Camere: 3
Garage: Singolo
Posti auto scoperti: 1 posto auto
Bagni: 2
Terrazze: 3

Costi:
Prezzo € 399.000


Efficienza energetica:
Classe energetica: A4
Riscaldamento: autonomo a pavimento