home page > Annunci immobiliari in Italia > Veneto > Treviso > Treviso > appartamenti in vendita > Scheda immobile

Appartamento in vendita a Treviso

COMPILA IL MODULO SOTTOSTANTE PER RICEVERE MAGGIORI INFORMAZIONI







Invia la richiesta ad altre agenzie
Accetto il trattamento dei miei dati



Asteaffari.com

Viale g. E l. Olivi 38
31100 Treviso

04221781118    Riferimenti: Stefano Dalto

Treviso
Prezzo: € 309.750
D
3
3
176
4



Descrizione:
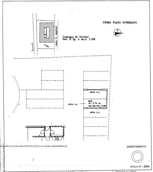
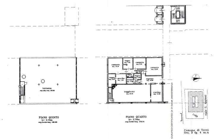
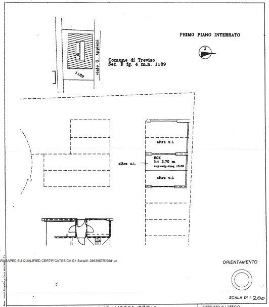
Rif. A.a.73-21vendita all'asta - appartamento al 4° piano in data 27 gennaio 2026descrizione: trattasi di un'unità immobiliare facente parte di un fabbricato in condominio denominato 'porta appiani'. L'appartamento, situato al 4° piano, risulta cosù composto: ingresso, cucina, soggiorno, tre camere, ripostiglio, guardaroba e lavanderia per una superficie lorda di circa mq. 176; completano la proprietà una terrazza al quinto piano di circa mq. 182 ed un garage di mq. 31 al primo piano interrato.l'immobile viene venduto tramite asta giudiziaria, ed il prezzo indicato si riferisce al prezzo minimo accettato per la partecipazione all'asta.aste-affari fornisce un servizio di assistenza e consulenza tecnica, legale, fiscale e finanziaria su acquisti all'asta e affari immobiliari, al fine di rendere più facile e sicuro l'acquisto di un immobile proveniente dal mercato giudiziario oppure da occasioni presenti sul mercato immobiliare.analisi di fattibilità, tecnica, burocratica, finanziaria, legale, esame problematiche e vincoli, conteggio costi accessori ed occulti, assistenza in tutte le fasi della procedura fino alla consegna delle chiavi dell'immobile.l'acquisto può essere finanziato tramite mutuo, e, ove possibile anche in pre-asta tramite procedura di saldo-stralcio.prezzo minimo base asta : da euro 309.750,00per info aggiuntive, prenotazione visione, consulenza ed assistenza su asta :studio di consulenza : 'aste-affari.com'info: un debitore ? chiamaci ! abbiamo soluzioni personalizzate anche per te.




Caratteristiche immobile:
Codice inserzione: 1763524311
Rif. Annuncio: A.A. 73-21
Provincia: Treviso
Comune: Treviso
Zona: Fuori Mura  
Superficie (Mq) : 176 Mq.
Tipo immobile: Appartamento
Stato immobile: usato
Anno costruzione/ristrutturazione: 1994
Piano: 4
Camere: 3
Garage: Singolo
Tipologia giardino : Condominiale
Bagni: 3 + lavanderia
Terrazze: 1

Costi:
Prezzo € 309.750


Efficienza energetica:
Classe energetica: D
Riscaldamento: autonomo