home page > Annunci immobiliari in Italia > Veneto > Treviso > Vittorio Veneto > appartamenti in vendita > Scheda immobile

Appartamento in vendita a Vittorio Veneto

COMPILA IL MODULO SOTTOSTANTE PER RICEVERE MAGGIORI INFORMAZIONI







Invia la richiesta ad altre agenzie
Accetto il trattamento dei miei dati



Asteaffari.com

Viale g. E l. Olivi 38
31100 Treviso

04221781118    Riferimenti: Stefano Dalto

Vittorio Veneto
Prezzo: € 49.100
F
2
1
80
2



Descrizione:
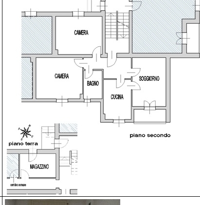
A.a. Tv 26-11vendesi all'asta appartamento in data 11 marzo 2026in località ceneda a 1.5 km dalla piazza papa giovanni paolo i, appartamento trilocale posto al secondo piano con loggia e magazzino al piano terra, inserito in un contesto condominiale di un tranquillo quartiere residenziale. Al limite del centro urbano, prospicente le colline e vicino a servizi primari. Esso è composto da: ingresso, pranzo-soggiorno, cucina, disimpegno, camera matrimoniale, camera doppia e bagno oltre a una loggia e un magazzino.prezzo minimo: 49.100 eurol'immobile viene venduto tramite asta , la vendita è riservata alle sole persone che possono usufruire delle agevolazioni prima casa , ed il prezzo indicato si riferisce al prezzo minimo accettato per la partecipazione all'asta solo per chi ha diritto ad agevolazione 'prima casa'.aste-affari fornisce un servizio di assistenza e consulenza tecnica, legale, fiscale e finanziaria su acquisti all'asta e affari immobiliari, al fine di rendere più facile e sicuro l'acquisto di un immobile proveniente dal mercato giudiziario oppure da occasioni presenti sul mercato immobiliare.analisi di fattibilità, tecnica, burocratica, finanziaria, legale, esame problematiche e vincoli, conteggio costi accessori ed occulti, assistenza in tutte le fasi della procedura fino alla consegna delle chiavi dell'immobile.l'acquisto può essere finanziato tramite mutuo, e, ove possibile anche in pre-asta tramite procedura di saldo-stralcio.per info aggiuntive, prenotazione visione, consulenza ed assistenza su asta :studio di consulenza : 'aste-affari.com'info:




Caratteristiche immobile:
Codice inserzione: 1770178833
Rif. Annuncio: A.A. TV 26-11
Provincia: Treviso
Comune: Vittorio Veneto
Superficie (Mq) : 80 Mq.
Tipo immobile: Appartamento
Stato immobile: usato
Anno costruzione/ristrutturazione: 1967
Piano: 2
Camere: 2
Bagni: 1

Costi:
Prezzo € 49.100


Efficienza energetica:
Classe energetica: F
Riscaldamento: autonomo