home page > Annunci immobiliari in Italia > Veneto > Treviso > Giavera del Montello > Case e ville indipendenti in vendita > Scheda immobile

Case e ville indipendenti in vendita a Giavera del Montello

COMPILA IL MODULO SOTTOSTANTE PER RICEVERE MAGGIORI INFORMAZIONI







Invia la richiesta ad altre agenzie
Accetto il trattamento dei miei dati



Ag. Imm. Luxor di bizzotto denis

Viale manin 13
31040 Volpago del Montello (TV)

04221522739    0422.882650    3402540785    Riferimenti: Denis Bizzotto

Giavera del Montello
Prezzo: € 190.000
3
2
153
1
1



Descrizione:
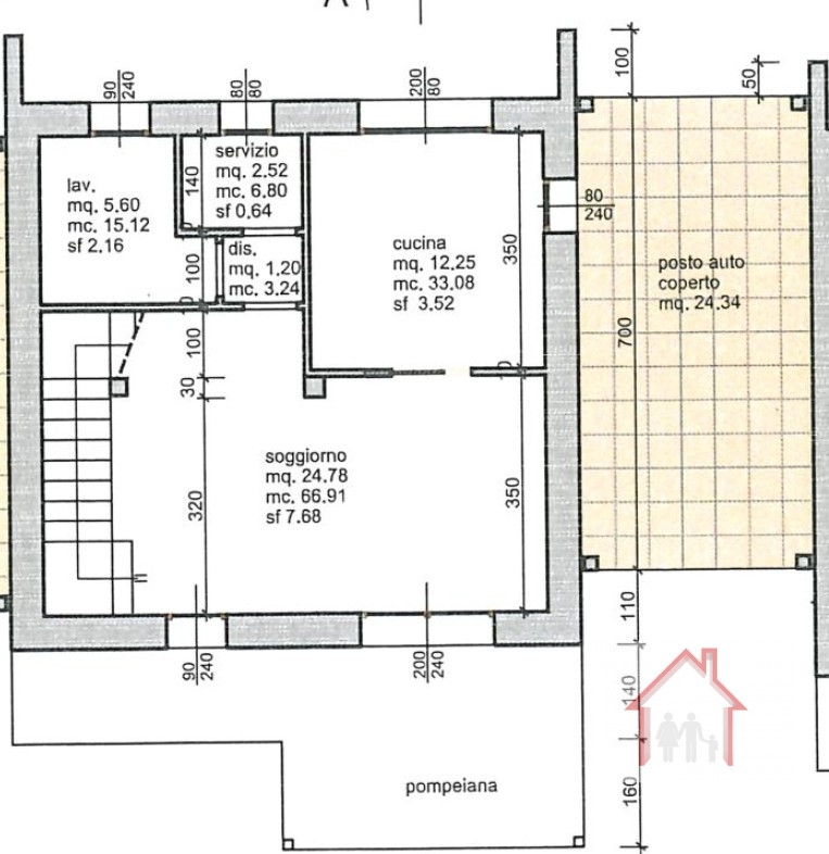
Nuova realizzazione di casa abbinataproponiamo in vendita una nuova realizzazione di casa abbinata su due livelli. Al piano terra troviamo amplio soggiorno e cucina separata dotato di grandi vetrate che affacciano su un portico esterno ideale per pranzare con gli amici o rilassarsi all'aperto. Infine troviamo un bagno e una lavanderia. Salendo al piano primo abbiamo tre camere: una matrimoniale con terrazzo e due singole, bagno e ripostiglio. la proprietà è arricchita da posto auto coperto e giardino privato.l'immobile viene consegnato al grezzo.rif: db351x info - denis: l'agenzia immobiliare luxor, da più di 20 anni, offre a tutti i clienti che vogliono vendere o acquistare casa un servizio completo e personalizzato alle specifiche esigenze di ognuno.per informazioni contattateci:tel: uff mail: uffici: viale l.g. Manin n. 12 volpago del montello (tv)sito: immobili:tutti gli immobili, da noi gestiti, ci sono stati affidati dai proprietari attraverso un mandato di vendita e vengono proposti dopo una nostra valutazione ed analisi di mercato.visite sull'immobile:le visite sono organizzate previo appuntamento conoscitivo ed informativo, senza alcun impegno, presso il nostro ufficio.consulenza mutuo:offriamo la possibilità di effettuare una consulenza con un nostro mediatore creditizio per accedere al mutuo su misura in base alle specifiche esigenze di finanziamento personali.ricordiamo infine che, in caso di acquisto, al prezzo del bene immobile dovranno essere aggiunti i seguenti costi: iva o imposta di registro, provvigione dovuta all'agenzia immobiliare, spese notarili, spese relative all'erogazione del mutuo, se richiesto.




Caratteristiche immobile:
Codice inserzione: 1759978960
Rif. Annuncio: DB351
Provincia: Treviso
Comune: Giavera del Montello
Zona: Cusignana  
Superficie (Mq) : 153 Mq.
Tipo immobile: Case e ville indipendenti
Stato immobile: nuovo
Anno costruzione/ristrutturazione: 2025
Piano: 1
Camere: 3
Posti auto scoperti: 1 posto auto
Bagni: 2 + lavanderia

Costi:
Prezzo € 190.000


Efficienza energetica: