home page > Annunci immobiliari in Italia > Veneto > Treviso > Loria > Case e ville indipendenti in vendita > Scheda immobile

Case e ville indipendenti in vendita a Loria

COMPILA IL MODULO SOTTOSTANTE PER RICEVERE MAGGIORI INFORMAZIONI







Invia la richiesta ad altre agenzie
Accetto il trattamento dei miei dati



Asteaffari.com

Viale g. E l. Olivi 38
31100 Treviso

04221781118    Riferimenti: Stefano Dalto

Loria
Prezzo: € 45.000
E
4
2
260
1



Descrizione:
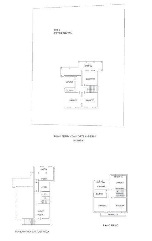
Rif. A.a.445-231 vendita all'asta - villino su tre livelli con giardino in data 31 marzo 2026 descrizione immobili : trattasi di un villino disposto su 3 livelli con giardino e sito in comune di loria (tv), in via campagna n. 59. L'unità immobiliare, della superficie commerciale complessiva di mq.260, è composta da: disimpegno, cantina, lavanderia, centrale termica, ripostiglio e magazzino al piano primo sotto strada; salotto, pranzo, cucinino, studio, soggiorno, disimpegno e portico al piano terra; quattro camere, disimpegno, bagno e terrazza al piano primo; pertinenziale area scoperta esclusiva di catastali mq. 730. prezzo minimo base asta : da euro 45.000,00 l'immobile viene venduto tramite asta giudiziaria, ed il prezzo indicato si riferisce al prezzo minimo accettato per la partecipazione all'asta.aste-affari fornisce un servizio di assistenza e consulenza tecnica, legale, fiscale e finanziaria su acquisti all'asta e affari immobiliari, al fine di rendere più facile e sicuro l'acquisto di un immobile proveniente dal mercato giudiziario oppure da occasioni presenti sul mercato immobiliare.analisi di fattibilità, tecnica, burocratica, finanziaria, legale, esame problematiche e vincoli, conteggio costi accessori ed occulti, assistenza in tutte le fasi della procedura fino alla consegna delle chiavi dell'immobile.l'acquisto può essere finanziato tramite mutuo, e, ove possibile anche in pre-asta tramite procedura di saldo-stralcio. per info aggiuntive, prenotazione visione, consulenza ed assistenza su asta :studio di consulenza : 'aste-affari.com'info: sei un debitore ? chiamaci ! abbiamo soluzioni personalizzate anche per te.




Caratteristiche immobile:
Codice inserzione: 1769763444
Rif. Annuncio: A.A.445-231
Provincia: Treviso
Comune: Loria
Zona: Ramon  
Superficie (Mq) : 260 Mq.
Tipo immobile: Case e ville indipendenti
Stato immobile: usato
Anno costruzione/ristrutturazione: 1964
Piano: 1
Camere: 4
Arredato:
Bagni: 2 + lavanderia
Terrazze: 1

Costi:
Prezzo € 45.000


Efficienza energetica:
Classe energetica: E
Riscaldamento: autonomo