home page > Annunci immobiliari in Italia > Veneto > Treviso > Montebelluna > Case e ville indipendenti in vendita > Scheda immobile

Case e ville indipendenti in vendita a Montebelluna

COMPILA IL MODULO SOTTOSTANTE PER RICEVERE MAGGIORI INFORMAZIONI







Invia la richiesta ad altre agenzie
Accetto il trattamento dei miei dati



Asteaffari.com

Viale g. E l. Olivi 38
31100 Treviso

04221781118    Riferimenti: Stefano Dalto

Montebelluna
Prezzo: € 93.000
F
3
2
289
1
1



Descrizione:
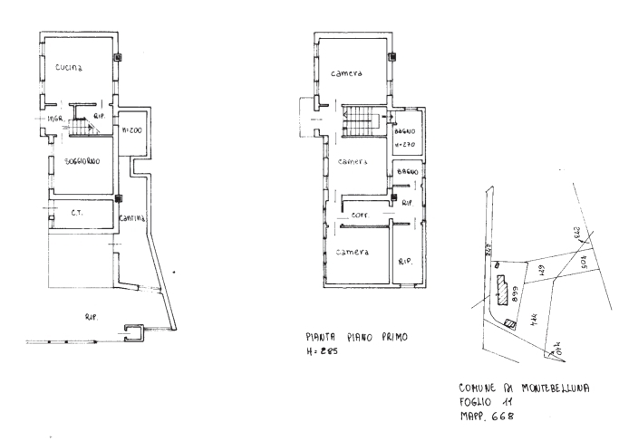
Rif. A.a.0-25vendita all'asta - casa singola su 2 livelli in data 24 febbraio 2026descrizione: trattasi di un'abitazione unifamiliare disposta ai piani terra e primo, facente parte di un fabbricato sito in comune di montebelluna (tv), in via emilio bongioanni (in catasto via emilio bongiovanni) n. 64; annessi due ripostigli su corpo di fabbrica staccato al piano terra; pertinenziali due garage al piano terra di cui uno su corpo di fabbrica staccato e area scoperta esclusiva di mq. 791 catastali. Accesso attraverso proprietà di terzi. Superficie commerciale complessiva mq.289.prezzo minimo base asta : da euro 93.000,00l'immobile viene venduto tramite asta giudiziaria, ed il prezzo indicato si riferisce al prezzo minimo accettato per la partecipazione all'asta.aste-affari fornisce un servizio di assistenza e consulenza tecnica, legale, fiscale e finanziaria su acquisti all'asta e affari immobiliari, al fine di rendere più facile e sicuro l'acquisto di un immobile proveniente dal mercato giudiziario oppure da occasioni presenti sul mercato immobiliare.analisi di fattibilità, tecnica, burocratica, finanziaria, legale, esame problematiche e vincoli, conteggio costi accessori ed occulti, assistenza in tutte le fasi della procedura fino alla consegna delle chiavi dell'immobile.l'acquisto può essere finanziato tramite mutuo, e, ove possibile anche in pre-asta tramite procedura di saldo-stralcio. per info aggiuntive, prenotazione visione, consulenza ed assistenza su asta : studio di consulenza : 'aste-affari.com' info: sei un debitore ? chiamaci ! abbiamo soluzioni personalizzate anche per te.




Caratteristiche immobile:
Codice inserzione: 1768191103
Rif. Annuncio: A.A. 0-25
Provincia: Treviso
Comune: Montebelluna
Superficie (Mq) : 289 Mq.
Tipo immobile: Case e ville indipendenti
Anno costruzione/ristrutturazione: 1960
Piano: 1
Camere: 3
Arredato:
Garage: Singolo
Posti auto scoperti: 1 posto auto
Bagni: 2 + lavanderia
Terrazze: 1

Costi:
Prezzo € 93.000


Efficienza energetica:
Classe energetica: F
Riscaldamento: autonomo