home page > Annunci immobiliari in Italia > Veneto > Treviso > Oderzo > Case e ville indipendenti in vendita > Scheda immobile

Case e ville indipendenti in vendita a Oderzo

COMPILA IL MODULO SOTTOSTANTE PER RICEVERE MAGGIORI INFORMAZIONI







Invia la richiesta ad altre agenzie
Accetto il trattamento dei miei dati



Cienne

Via martiri della libertà, 26
31046 Oderzo (TV)

0422815891    0422.815891    347.2460877

Oderzo
Prezzo: € 550.000
5
400



Descrizione:
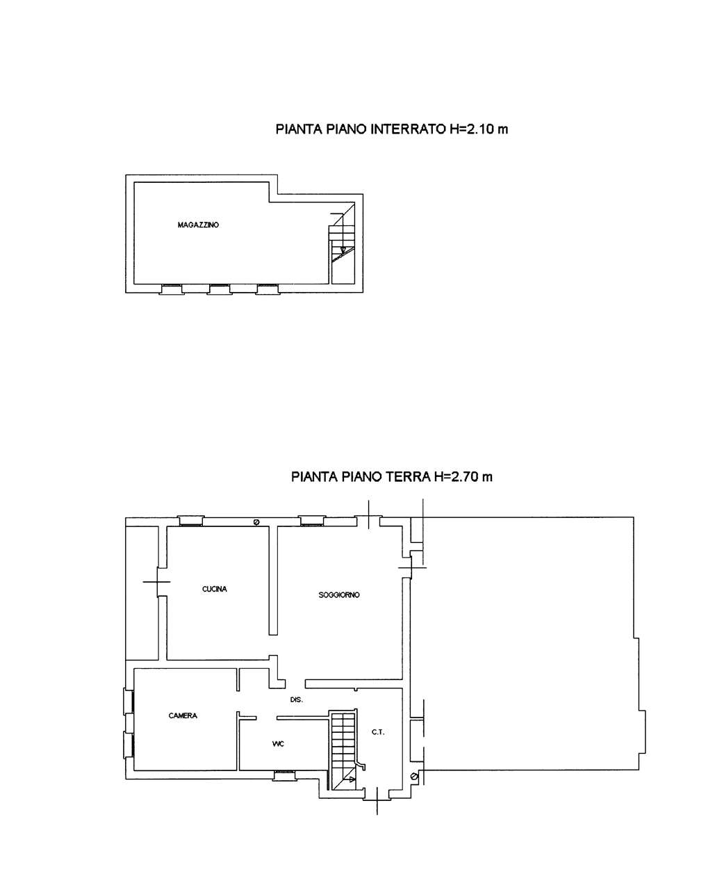
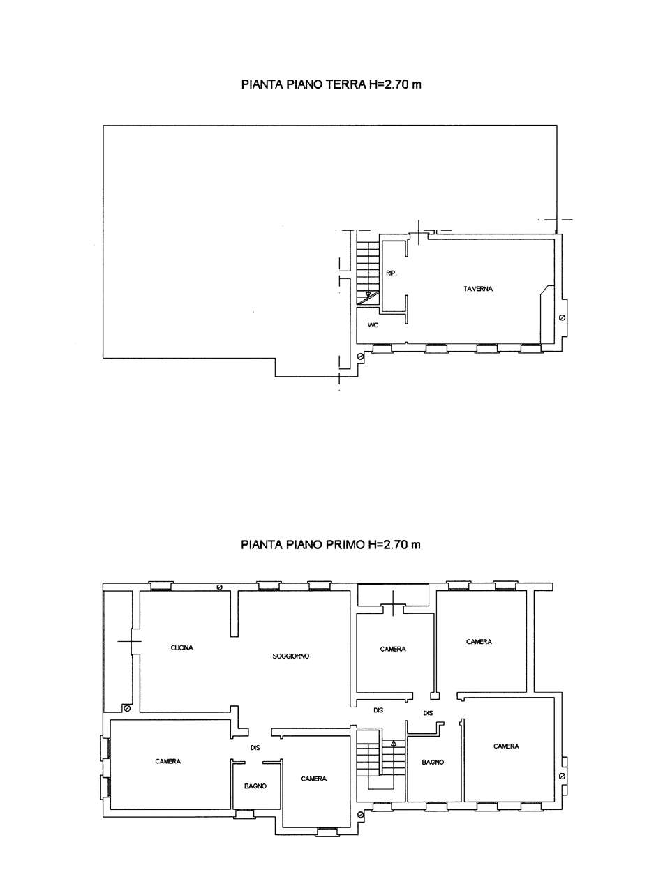
Oderzo (treviso) in tranquilla zona residenziale a pochi passi dal centro su lotto di circa 700 mq. Vendiamo abitazione composta attualmente da due unità abitative con ingresso indipendente ma, con possibilità di realizzare una unica unità. Piano terra composto da ingresso, ampia cucina abitabile, soggiorno ( 30 mq.) camera matrimoniale, bagno. Taverna e garage. Al piano interrato troviamo un magazzino ( 30 mq.) al piano primo l'abitazione è attualmente composta da seconda cucina, soggiorno, due bagni, tre camere. Nella soluzione abitazione singola il piano primo può essere composto da due bagni e 5/6 camere. Immobile in buone condizioni generali ed abitabile anche da subito con pochi lavori di ripristino. Ottimo contesto. Si intende precisare che gli indirizzi presenti negli annunci non sono identificativi dell'ubicazione precisa dell'immobile, danno un riferimento solo generico della zona al cliente che ricerca, al fine di tutelare la privacy e riservatezza del venditore agenzia immobiliare cienne oderzo (treviso) tel altre nostre proposte su: noi la vendita del vostro immobile si perfezionera' in tempi brevissimi, non aspettate a contattarci al n Affrettatevi!i mutui più vantaggiosi del mercato per convenienza e flessibilità. Fino al 100% del valore dell'immobile.classe energetica: in fase di valutazione




Caratteristiche immobile:
Codice inserzione: 1749597111
Rif. Annuncio: SINGOLA550AP
Provincia: Treviso
Comune: Oderzo
Superficie (Mq) : 400 Mq.
Tipo immobile: Case e ville indipendenti
Camere: 5

Costi:
Prezzo € 550.000


Efficienza energetica: