home page > Annunci immobiliari in Italia > Veneto > Treviso > Oderzo > Case e ville indipendenti in vendita > Scheda immobile

Case e ville indipendenti in vendita a Oderzo

COMPILA IL MODULO SOTTOSTANTE PER RICEVERE MAGGIORI INFORMAZIONI







Invia la richiesta ad altre agenzie
Accetto il trattamento dei miei dati



Asteaffari.com

Viale g. E l. Olivi 38
31100 Treviso

04221781118    Riferimenti: Stefano Dalto

Oderzo
Prezzo: € 900.000
F
575
1
1



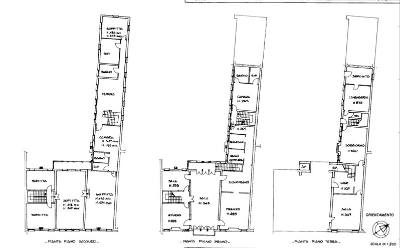
Descrizione:
Rif. A.a.24-211vendita all'asta - palazzo d'epoca in data 11 febbraio 2026descrizione: trattasi di 'palazzo detto ex pretorio' - palazzo d'epoca con barchessa e giardino interno (della superficie catastale di mq 380), ubicati nel centro storico del comune di oderzo. Immobile vincolato ai sensi della l Superficie complessiva palazzo su due livelli mq.575,00 ca.l'immobile viene venduto tramite asta giudiziaria, ed il prezzo indicato si riferisce al prezzo minimo accettato per la partecipazione all'astaaste-affari fornisce un servizio di assistenza e consulenza tecnica , legale, fiscale e finanziaria su acquisti all'asta e affari immobiliari , al fine di rendere più facile e sicuro l'acquisto di un immobile proveniente dal mercato giudiziario oppure da occasioni presenti sul mercato immobiliare . analisi di fattibilità , tecnica, burocratica, finanziaria , legale , esame problematiche e vincoli , conteggio costi accessori ed occulti, assistenza in tutte le fasi della procedura fino alla consegna delle chiavi dell'immobile .l'acquisto può essere finanziato tramite mutuo , e , ove possibile , anche in pre-asta tramite procedura di saldo-stralcio .soluzioni personalizzate per i debitori .prezzo minimo base asta : euro 900.000,00per info aggiuntive , prenotazione visione, consulenza ed assistenza studio di consulenza : 'aste-affari.com'info :




Caratteristiche immobile:
Codice inserzione: 1765339964
Rif. Annuncio: A.A. 24-211
Provincia: Treviso
Comune: Oderzo
Superficie (Mq) : 575 Mq.
Tipo immobile: Case e ville indipendenti
Stato immobile: usato
Anno costruzione/ristrutturazione: 1900
Piano: 1
Arredato:
Garage: Singolo
Posti auto scoperti: 1 posto auto

Costi:
Prezzo € 900.000


Efficienza energetica:
Classe energetica: F
Riscaldamento: autonomo