home page > Annunci immobiliari in Italia > Veneto > Treviso > Silea > Case e ville indipendenti in vendita > Scheda immobile

Case e ville indipendenti in vendita a Silea

COMPILA IL MODULO SOTTOSTANTE PER RICEVERE MAGGIORI INFORMAZIONI







Invia la richiesta ad altre agenzie
Accetto il trattamento dei miei dati



Zetaeffe di zennari oscar

Via roma 8
31057 Silea (TV)

0422363464    Riferimenti: Oscar Zennari

Silea
Prezzo: € 530.000
A4
3
3
179
1
1



Descrizione:
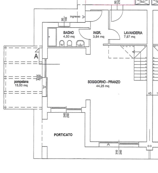
A silea, in posizione privilegiata a pochi passi dalla suggestiva restera e comodissima a tutti i servizi raggiungibili a piedi, proponiamo in vendita una splendida bifamiliare di nuova costruzione (2023), certificata in classe energetica a4 e dotata di ben 550 mq di giardino esclusivo. L'abitazione si sviluppa su due piani fuori terra per un totale di 179 mq ed è stata completamente personalizzata con finiture extra capitolato che ne esaltano il comfort e la modernità.al piano terra vi accoglie una luminosa zona giorno open-space da oltre 47 mq, caratterizzata da tre grandi vetrate scorrevoli che collegano perfettamente l'interno all'esterno regalando luce naturale durante tutto il giorno. Qui troviamo anche una cucina moderna con isola centrale, bagno finestrato completo, lavanderia separata di ben 8 mq e uno spazioso porticato ideale per momenti conviviali all'aperto.la zona notte al primo piano offre due camere matrimoniali entrambe con accesso diretto ad un grande terrazzo abitabile di circa 16 mq , una camera singola molto ampia (13 mq) e doppi servizi finestrati tra cui quello padronale riservato alla master room.tra le dotazioni: riscaldamento/raffrescamento radiante a pavimento, impianto fotovoltaico da 6 kw con batteria d'accumulo per massima efficienza energetica, ventilazione meccanica controllata vmc, cappotto esterno termoisolante e raffinati listoni parquet oversize in tutte le stanze. Gli ambienti risultano ariosi grazie alle linee essenziali dell'arredo contemporaneo; le ampie superfici vetrate garantiscono privacy ma anche continuità visiva col verde circostante del giardino dove rilassarsi o far giocare i bambini in sicurezza.vivere qui significa godere della tranquillità residenziale senza rinunciare ai vantaggi del centro paese né alle passeggiate lungo il fiume sile immersi nella natura protetta del parco regionale. Un'opportunità unica per chi cerca qualità costruttiva elevatissima abbinata ad uno stile moderno ed elegante!riferimento ' mfs5'l'indirizzo riportato ha il solo scopo di indicare il comune dell'immobile trattato.




Caratteristiche immobile:
Codice inserzione: 1767932509
Rif. Annuncio: MFS5
Provincia: Treviso
Comune: Silea
Superficie (Mq) : 179 Mq.
Tipo immobile: Case e ville indipendenti
Stato immobile: usato
Anno costruzione/ristrutturazione: 2023
Piano: 1
Camere: 3
Arredato:
Posti auto scoperti: 1 posto auto
Bagni: 3 + lavanderia
Terrazze: 1

Costi:
Prezzo € 530.000


Efficienza energetica:
Classe energetica: A4
Indice di prestazione energetica (EPgl): 4.83 kWh/mq annui
Riscaldamento: autonomo a pavimento