home page > Annunci immobiliari in Italia > Veneto > Treviso > San Zenone degli Ezzelini > Case e ville a schiera in vendita > Scheda immobile

Case e ville a schiera in vendita a San Zenone degli Ezzelini

COMPILA IL MODULO SOTTOSTANTE PER RICEVERE MAGGIORI INFORMAZIONI







Invia la richiesta ad altre agenzie
Accetto il trattamento dei miei dati



Sm immobiliare

Viale pio x 49
36061 Bassano del Grappa (VI)

0424394070

San Zenone degli Ezzelini
Prezzo: € 65.000
2
250
1



Descrizione:
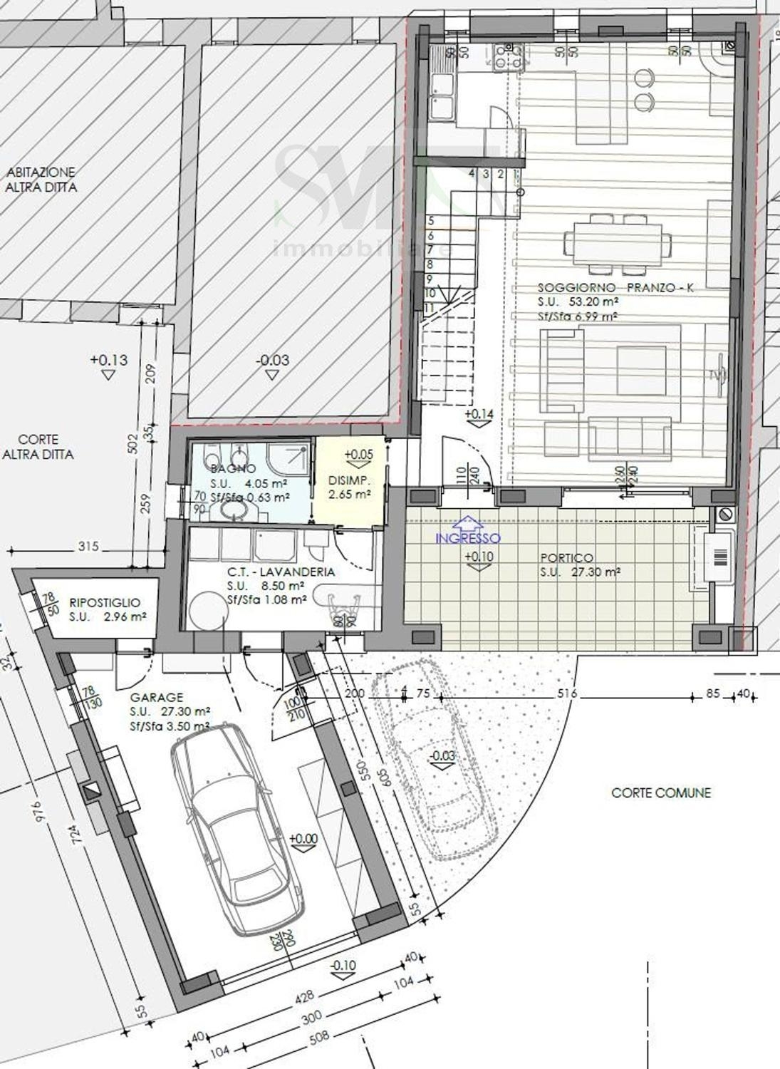
In comune di san zenone, in strada chiusa al traffico, proponiamo rustico degli anni 60. Caratterizzato dalla tranquillità della zona in cui si trova, questa abitazione in corte comune ma con garage e anche posto auto esterno riservato, vanta delle metrature generose ma non esagerate. Ottima occasione con progetto già approvato per la ristrutturazione! contattaci per maggiori info e fissare una visita per vedere di persona la potenzialità di questa offerta!




Caratteristiche immobile:
Codice inserzione: 1732235823
Rif. Annuncio: 6956
Provincia: Treviso
Comune: San Zenone degli Ezzelini
Superficie (Mq) : 250 Mq.
Tipo immobile: Case e ville a schiera
Stato immobile: usato da riattare
Anno costruzione/ristrutturazione: 1960
Posti auto coperti: 1 posto auto
Bagni: 2

Costi:
Prezzo € 65.000


Efficienza energetica: