home page > Annunci immobiliari in Italia > Piemonte > Torino > Torino > Negozi uffici capannoni in vendita > Scheda immobile

Negozi uffici capannoni in vendita a Torino

COMPILA IL MODULO SOTTOSTANTE PER RICEVERE MAGGIORI INFORMAZIONI







Invia la richiesta ad altre agenzie
Accetto il trattamento dei miei dati



Quimmo agency

Via galileo galilei 6
48018 Faenza (RA)

0299944698

Torino
Prezzo: € 3.180.000
D
1730



Descrizione:
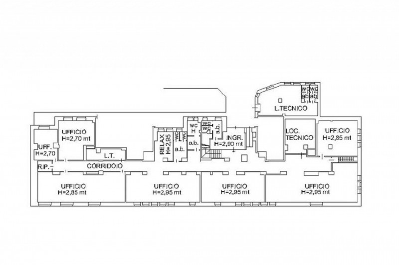
Vendesi ampio ufficio e pertinenze in centro storico sito a torino (to), corso giacomo matteotti 39/bis. Vicino stazione ferroviaria porta susa e fermata della metropolitana vinzaglio. Immobile realizzato nel 1960, oggetto di ristrutturazione totale interna dei piani seminterrato, rialzato e primo nel 2012. Trattasi di unità su più piani collegati da scala interna e ascensore. Piano rialzato con ingresso indipendente, reception, sala d'attesa, uffici, accessori e bagni (315 mq commerciali ca). Piano primo con uffici, sale riunioni, accessori, bagni e terrazzo (710 mq commerciali ca). Piano seminterrato con uffici, sale riunioni, archivi, ripostigli, guardaroba, refettorio, centro stampa e bagni (695 mq commerciali ca). Inclusi magazzino e due cantine in seminterrato. Cinque posti auto (tre coperti in seminterrato e due in cortile con accesso carrabile su via vitaliano donati 10/b. Immobile locato a primario tenant (scadenza 31 marzo 2027). Condizioni ottime. Beni mobili esclusi dalla vendita. Considerando posizione, manutenzione e locazione, si presta per essere in investimento a reddito.per maggiori dettagli consultare i documenti allegati.classe energetica dsuperficie commerciale: 1730 mqproprietà di foglio 1284:locali direzionali (cf): particella 1 subalterno 5007 d/8pertinenze graffate (cf): particella 1 subalterno 5016 d/8posti auto coperti (cf): particella 1 subalterni 5018 e 5019 c/6prezzo iva esclusa (tipicamente aliquota pari al 22%). La proprietà si rende disponibile all'applicazione del reverse charge iva.




Caratteristiche immobile:
Codice inserzione: 1770954461
Rif. Annuncio: 15888
Provincia: Torino
Comune: Torino
Superficie (Mq) : 1730 Mq.
Tipo immobile: Negozi uffici capannoni
Stato immobile: ristrutturato

Costi:
Prezzo € 3.180.000


Efficienza energetica:
Classe energetica: D
Riscaldamento: autonomo