home page > Annunci immobiliari in Italia > Veneto > Padova > Piove di Sacco > Negozi uffici capannoni in vendita > Scheda immobile

Negozi uffici capannoni in vendita a Piove di Sacco

COMPILA IL MODULO SOTTOSTANTE PER RICEVERE MAGGIORI INFORMAZIONI







Invia la richiesta ad altre agenzie
Accetto il trattamento dei miei dati



L'industriale agenzia immobiliare di zecchin pamela

Via castello 49a
35028 Piove di Sacco (PD)

0495841160    3393568237    Riferimenti: Pamela Zecchin

Piove di Sacco
Prezzo: € 2.600.000
4750
1



Descrizione:
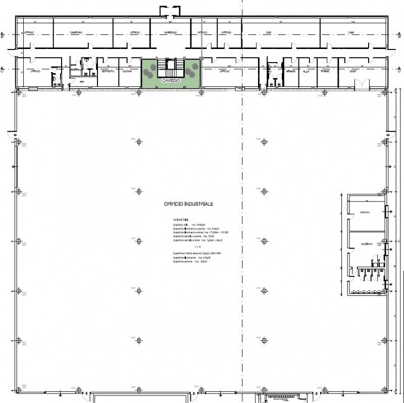
Proponiamo in vendita spazioso capannone artigianale/industriale nella zona del pioveseottima opportunità per imprenditori e aziende alla ricerca di un nuovo spazio operativo.l'immobile è ideale per uso laboratorio, magazzino ma anche attività di logistica e per carico/scarico merce.il fabbricato è collocato su un area totale di 8400 mq circa con ben due accessi carrai.l'immobile è composto da circa 3250 mq di capannone con altezza 7,20 metri sotto trave, più uffici e show room di 1500 mq circa distribuiti su due piani.il capannone è dotato di predisposizione carroponte e 5 portoni.l'immobile viene venduto allo stato grezzo avanzato.se ti interessa visionarla senza alcun impegno chiamaci!paolo l'indirizzo indicato nell'annuncio ed il puntatore visualizzato nella mappa per motivi di privacy sono solamente indicativi.siamo a vostra disposizione per fornirvi ulteriori informazionipotete scriverci a chiamarci o inviarci un messaggio su whatsappl'industriale agenzia immobiliarevia castello n. 49a35028 piove di sacco pdtel vuoi vendere il tuo immobile?non esitare a contattarci, daremo massima visibilità al tuo immobile, senza alcuna spesa, inserendolo all'interno di tutte le nostre piattaforme:- pubblicazione nei principali portali online e nei nostri canali social- inserimento all'interno del nostro sito internet presenza nelle nostre vetrineper laboratorio ma anche attività di logistica e per carico/scarico di merce.




Caratteristiche immobile:
Codice inserzione: 1775702297
Rif. Annuncio: K332
Provincia: Padova
Comune: Piove di Sacco
Superficie (Mq) : 4750 Mq.
Tipo immobile: Negozi uffici capannoni
Anno costruzione/ristrutturazione: 2020
Piano: 1

Costi:
Prezzo € 2.600.000


Efficienza energetica:
Classe energetica: Immobile non soggetto all'obbligo di certificazione