home page > Annunci immobiliari in Italia > Abruzzo > Chieti > Giuliano Teatino > Negozi uffici capannoni in vendita > Scheda immobile

Negozi uffici capannoni in vendita a Giuliano Teatino

COMPILA IL MODULO SOTTOSTANTE PER RICEVERE MAGGIORI INFORMAZIONI







Invia la richiesta ad altre agenzie
Accetto il trattamento dei miei dati



Quimmo agency

Via galileo galilei 6
48018 Faenza (RA)

0299944698

Giuliano Teatino
Prezzo: € 181.500
G
1724



Descrizione:
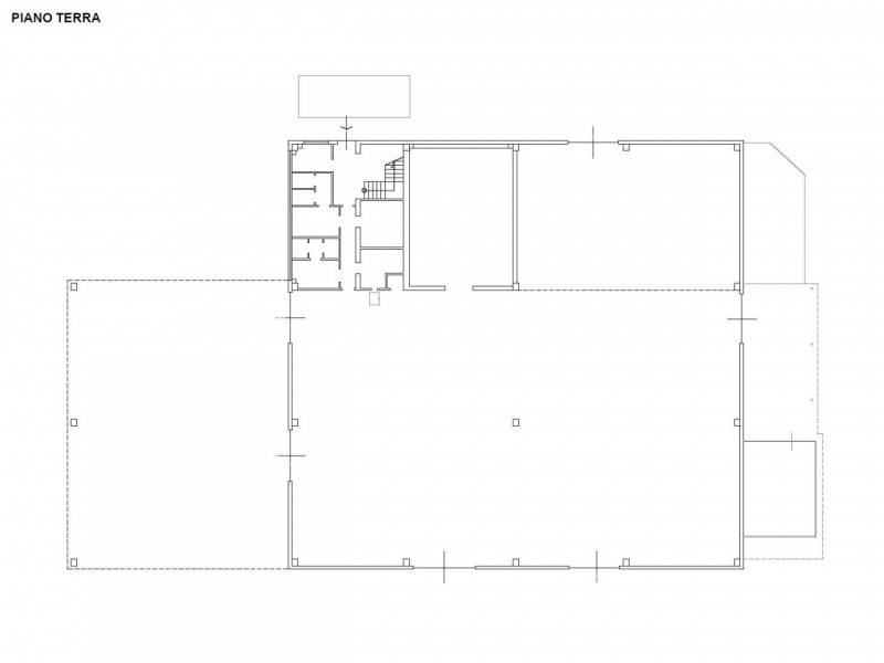
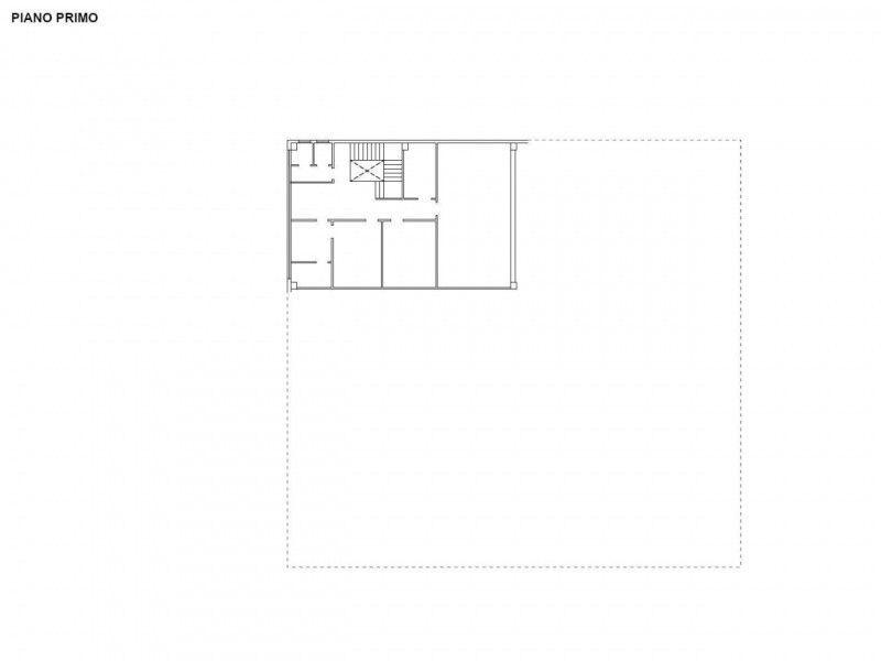
Vendesi capannone con area di pertinenza sito a giuliano teatino (ch), via arenella 1. L'immobile è ubicato in zona agricola, a circa 800 mt dal paese, distante dall'autostrada circa 15 km. Trattasi di fabbricato industriale composto da un unico corpo di fabbrica che si sviluppa su due livelli. Al piano terra vi è: l'area produttiva in un unico ambiente, un ampia zona coperta utile per il carico e scarico delle merci, un'area servizi ed uffici, una cella frigorifera interna, una cella frigorifera esterna, una tettoia e una zona impianti. Al piano primo, collegato da scala interna, si trovano gli uffici amministrativi con i servizi. L'area di pertinenza esterna è ubicata a confine di un'altra proprietà con la quale condivide l'ingresso principale carrabile. Immobile libero. Nonostante lo stato manutentivo assente, le condizioni risultano discrete. Beni mobili esclusi dalla vendita. E' presente all'interno materiale di vario genere.per maggiori dettagli consultare i documenti allegati.classe energetica 'g'superficie commerciale: 1724 mqpiena proprietà di:capannone (cf): foglio 9 particella 504 subalterno 1 cat d/1




Caratteristiche immobile:
Codice inserzione: 1763698181
Rif. Annuncio: 14696
Provincia: Chieti
Comune: Giuliano Teatino
Superficie (Mq) : 1724 Mq.
Tipo immobile: Negozi uffici capannoni
Stato immobile: usato
Anno costruzione/ristrutturazione: 1992

Costi:
Prezzo € 181.500


Efficienza energetica:
Classe energetica: G
Riscaldamento: autonomo