home page > Annunci immobiliari in Italia > Abruzzo > L'Aquila > Avezzano > Negozi uffici capannoni in vendita > Scheda immobile

Negozi uffici capannoni in vendita a Avezzano

COMPILA IL MODULO SOTTOSTANTE PER RICEVERE MAGGIORI INFORMAZIONI







Invia la richiesta ad altre agenzie
Accetto il trattamento dei miei dati



Quimmo agency

Via galileo galilei 6
48018 Faenza (RA)

0299944698

Avezzano
Prezzo: € 165.000
A1
137



Descrizione:
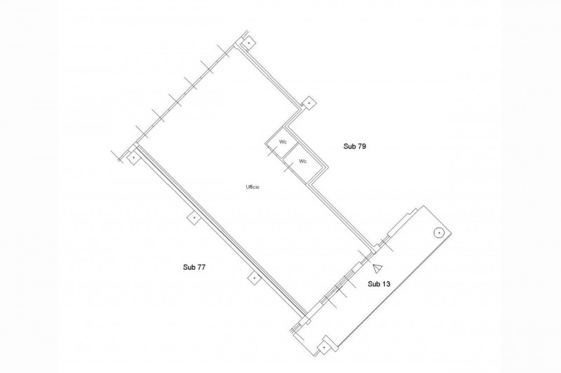
All'interno di uno stabile condominiale situato in piazza john fitzgerald kennedy n. 1, nel comune di avezzano, proponiamo in vendita un ufficio posto al terzo piano.l'immobile si presenta come una soluzione ideale per attività professionali che necessitano di ambienti riservati e ben distribuiti. L'accesso avviene tramite la scala b del condominio, e l'unità si sviluppa in spazi funzionali, tra cui un ufficio principale e servizi igienici dedicati. L'altezza interna di 3 metri garantisce ambienti luminosi e ariosi, adatti a favorire la produttività e il comfort lavorativo.la posizione al terzo piano offre tranquillità e una vista aperta, pur mantenendo la comodità di una zona centrale e ben servita.possibilità di acquisto a parte di porzione di deposito al piano interrato e posto auto al piano interrato.questa proposta rappresenta un'opportunità interessante per chi cerca uno spazio professionale pronto all'uso, in una delle piazze più centrali e riconoscibili di avezzano.




Caratteristiche immobile:
Codice inserzione: 1762833416
Rif. Annuncio: 2537574
Provincia: L'Aquila
Comune: Avezzano
Superficie (Mq) : 137 Mq.
Tipo immobile: Negozi uffici capannoni

Costi:
Prezzo € 165.000


Efficienza energetica:
Classe energetica: A1