home page > Annunci immobiliari in Italia > Abruzzo > Pescara > Montesilvano > appartamenti in vendita > Scheda immobile

Appartamento in vendita a Montesilvano

COMPILA IL MODULO SOTTOSTANTE PER RICEVERE MAGGIORI INFORMAZIONI







Invia la richiesta ad altre agenzie
Accetto il trattamento dei miei dati



Quimmo agency

Via galileo galilei 6
48018 Faenza (RA)

0299944698

Montesilvano
Prezzo: € 109.000
E
2
2
134



Descrizione:
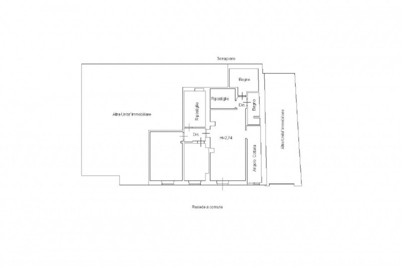
Appartamento al piano seminterrato con ingresso indipendente e annessa unità ad uso magazzino/deposito facente parte di un fabbricato residenziale composto da 4 unità immobiliari residenziali e da due unità immobiliari ad uso magazzino/deposito con accesso in montesilvano (ps) , via niccolò tommaseo n°2, in una zona tranquilla e ben collegata alla viabilità primaria. L'immobile risulta composto da ingresso su un accogliente soggiorno accanto al quale troviamo un pratico cucinotto, due camere da letto, due ripostigli, bagno. Impianto di riscaldamento autonomo. Il magazzino/deposito, di grande utilità, è posto al piano terra rispetto il livello stradale, costituito da unico ambiente dotato di un portone metallico. L'accesso ad entrambe le unità avviene mediante transito su cortile a comune (sub.1), cortile a cui si accede mediante passaggio su strada di proprietà di terzi.classe energetica: 'e'superficie commerciale: 133,60 mqsuperficie lorda appartamento: 121 mqsuperficie lorda magazzino: 42 mqpiena proprietà:a/3 (cf) foglio 10 mappale 285 - subalterno 17c/2 (cf) foglio 10 mappale 285 - subalterno 18immobile soggetto a imposta di registro.




Caratteristiche immobile:
Codice inserzione: 1757386948
Rif. Annuncio: 24357
Provincia: Pescara
Comune: Montesilvano
Superficie (Mq) : 134 Mq.
Tipo immobile: Appartamento
Stato immobile: usato da riattare
Camere: 2
Tipologia giardino : Condominiale
Bagni: 2

Costi:
Prezzo € 109.000


Efficienza energetica:
Classe energetica: E
Riscaldamento: autonomo