0858893586 3296708468 Riferimenti: Mirco Savini
Descrizione:
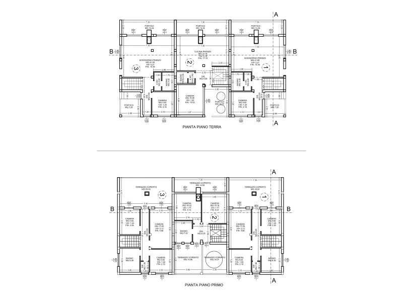
vendesi lotto edificabile in zona e3 di circa 1.245mq. Nel comune di spoltore e precisamente contrada sferrella nei pressi della motorizzazione civile di pescara in zona di espansione, per la realizzazione di un complesso residenziale di villette a schiera. Indice di edificabilità 1.00 mc/mq.i dati e le immagini si intendono corretti ma non garantiti. La presente non costituisce in nessun caso documento contrattuale.
| Codice inserzione: | 1768591722 |
| Rif. Annuncio: | 1838042 |
| Provincia: | Pescara |
| Comune: | Spoltore |
| Superficie (Mq) : | 1245 Mq. |
| Tipo immobile: | Terreni |
| Stato al rogito: | Libero |
| Prezzo | € 148.000 |