home page > Annunci immobiliari in Italia > Abruzzo > Teramo > Martinsicuro > appartamenti in vendita > Scheda immobile

Appartamento in vendita a Martinsicuro

COMPILA IL MODULO SOTTOSTANTE PER RICEVERE MAGGIORI INFORMAZIONI







Invia la richiesta ad altre agenzie
Accetto il trattamento dei miei dati



Alba adriatica

Lungomare marconi 80
64011 Alba Adriatica (TE)

08611864850

Martinsicuro
Prezzo: € 175.000
2
2
78



Descrizione:
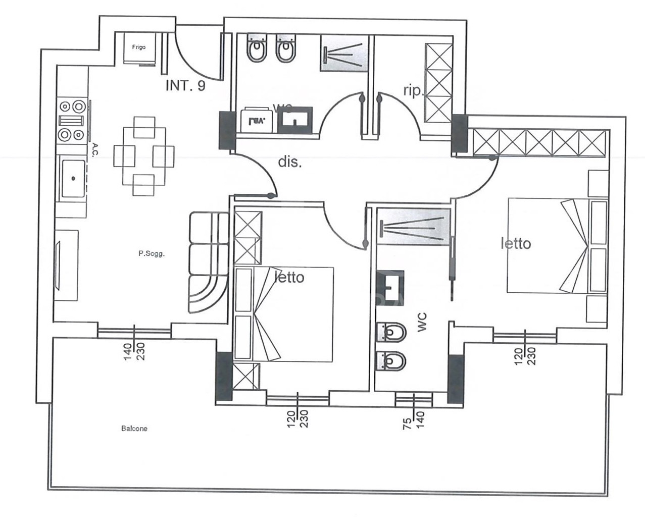
Rif. A174 martinsicuro: proponiamo in vendita un moderno e accogliente appartamento di nuova costruzione, situato nel comune di martinsicuro (te). Con una superficie di 78 mq, questo immobile si trova in una zona panoramica fronte mare, in una tranquilla e servita zona residenziale.gli appartamenti saranno consegnati in classe a4, garantendo massimo comfort abitativo grazie al riscaldamento a pavimento e ai condizionatori caldo/freddo. La palazzina è dotata di cappotto termico di 10 cm e di ascensore, per garantire un facile accesso a tutte le unità abitative.l'appartamento in questione, situato al primo piano, è composto da un luminoso soggiorno con cucina a vista, due camere matrimoniali, un pratico ripostiglio, due bagni e un ampio terrazzo esposto ad est, ideale per godere di piacevoli momenti all'aperto.possibilità di acquistare garage, fondaco e/o posto auto prezzo da computare a parte.la posizione strategica, vicina a servizi essenziali come fermate del bus, caffetterie, farmacie e altro ancora, rende questo immobile una soluzione ideale per chi cerca comfort, tranquillità e una vista mozzafiato sul mare. Contattaci per organizzare una visita e scoprire tutte le potenzialità di questo splendido appartamento a martinsicuro.




Caratteristiche immobile:
Codice inserzione: 1762389683
Rif. Annuncio: Cod. rif A174VRG
Provincia: Teramo
Comune: Martinsicuro
Superficie (Mq) : 78 Mq.
Tipo immobile: Appartamento
Stato immobile: nuovo
Camere: 2
Bagni: 2
Terrazze: 1

Costi:
Prezzo € 175.000


Efficienza energetica:
Indice di prestazione energetica (EPgl): 2 kWh/mq annui
Riscaldamento: autonomo