home page > Annunci immobiliari in Italia > Abruzzo > Teramo > Martinsicuro > Terreni in vendita > Scheda immobile

Terreni in vendita a Martinsicuro

COMPILA IL MODULO SOTTOSTANTE PER RICEVERE MAGGIORI INFORMAZIONI







Invia la richiesta ad altre agenzie
Accetto il trattamento dei miei dati



San benedetto del tronto

Piazza san giovanni battista 13
63074 San Benedetto del Tronto (AP)

0735593935

Martinsicuro
Prezzo: € 38.000
9060



Descrizione:
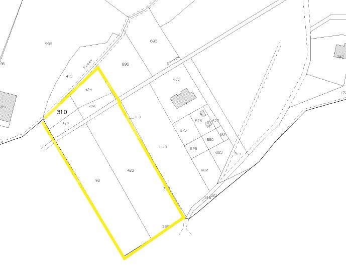
A martinsicuro in via dei laghi la gabetti franchising propone in vendita un terreno di circa 1 ettaro, pianeggiante per la maggior parte della sua estensione solo una piccola porzione sotto strada è in pendenza .il terreno di si trova a pochi chilometri dal centro del paese e dalla costa, facilmente raggiungibile con ogni mezzo.sul terreno è presente un pozzo per l'acqua da ripristinare.le presenti informazioni non costituiscono elemento contrattuale.




Caratteristiche immobile:
Codice inserzione: 1759707613
Rif. Annuncio: Cod. rif 3263546VRG
Provincia: Teramo
Comune: Martinsicuro
Superficie (Mq) : 9060 Mq.
Tipo immobile: Terreni

Costi:
Prezzo € 38.000


Efficienza energetica: