home page > Annunci immobiliari in Italia > Basilicata > Potenza > Melfi > Negozi uffici capannoni in vendita > Scheda immobile

Negozi uffici capannoni in vendita a Melfi

COMPILA IL MODULO SOTTOSTANTE PER RICEVERE MAGGIORI INFORMAZIONI







Invia la richiesta ad altre agenzie
Accetto il trattamento dei miei dati



Quimmo agency

Via galileo galilei 6
48018 Faenza (RA)

0299944698

Melfi
Prezzo: € 1.442.000
G
6328



Descrizione:
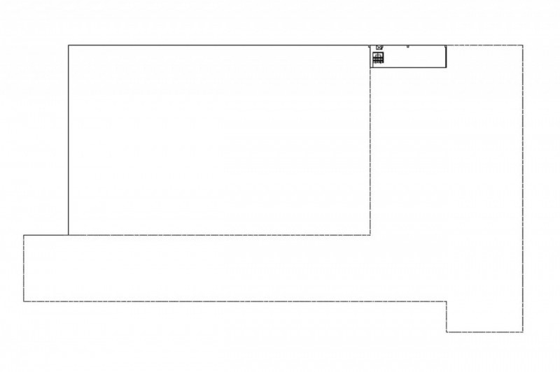
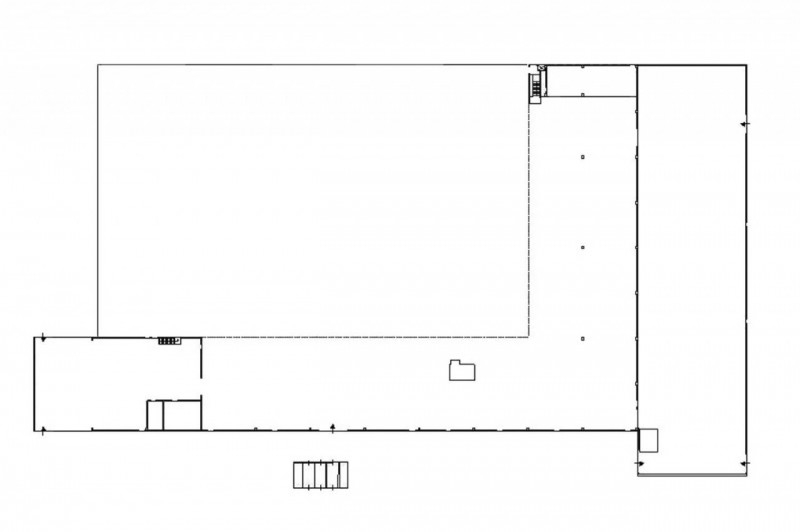
Vendesi porzione di capannone in zona industriale sito a melfi (pz), località san nicola, zona industriale snc. Il contesto è periferico, tranquillo e con traffico regolare. La zona è urbanizzata e ben collegata dalla vicina rete infrastrutturale ai centri di melfi e lavello, ove si trovano i principali servizi. Area caratterizzata da capannoni industriali a formare un villaggio produttivo con percorsi interni e parcheggi. L'unità è parte di un più grande complesso produttivo realizzato nel 2000, con struttura portante in cemento armato prefabbricato e acciaio. Trattasi di porzione di capannone piano terra con laboratorio, deposito prodotti finiti e uffici mobili. Piano primo con sala mensa. Vano scala con montacarichi. Locali internamente comunicanti con laboratori di altrui proprietà. Porzione di cortile privata, con aree verdi, magazzino esterno e vialetto carrabile collegato alla strada. Finiture e impianti standard, adatti ad attività produttive. Capannone con portone carrabile per accesso ai mezzi pesanti. Climatizzazione ad aria. Immobile affittato. Condizioni buone. Beni mobili esclusi dalla vendita.per maggiori dettagli consultare i documenti allegati.classe energetica gsuperficie commerciale: 6328 mqpiena proprietà di:capannone con corte (cf): foglio 5 particella 1484 d/7area di sedime (ct): foglio 5 particella 1484 ente urbano




Caratteristiche immobile:
Codice inserzione: 1757386406
Rif. Annuncio: 14773
Provincia: Potenza
Comune: Melfi
Superficie (Mq) : 6328 Mq.
Tipo immobile: Negozi uffici capannoni
Stato immobile: usato
Anno costruzione/ristrutturazione: 2000

Costi:
Prezzo € 1.442.000


Efficienza energetica:
Classe energetica: G
Riscaldamento: autonomo