Descrizione:
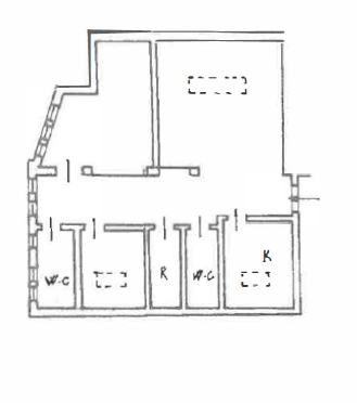
Appartamento all'asta in via g.amendola, castrolibero (cs)si propone il diritto di piena proprietà di un'unità immobiliare ad uso residenziale sita in via g.amendola n 23, nel comune di castrolibero (cs). Nello specifico si tratta di un appartamento, composto cosù:- ingresso-salone, - cucina, - 2 camere da letto, - 2 bagni, - ripostiglio.l'immobile ha una superficie commerciale di mq 127.dati catastali:- foglio 10 particella 399 subalterno 19, vani 5, rendita euro 387,34.chi siamoimmobiliallasta.it aiuta le persone a comprare casa all'asta e migliorare la qualità della loro vita senza correre rischi, grazie ad una piattaforma specializzata in aste immobiliari sviluppata intorno alle vere esigenze di chi cerca casa all'asta e ad un team di 30 professionisti esperti dedicato, che ti guida passo passo in un acquisto sicuro e certificato da una tripla garanzia sull'immobile e sul servizio.a differenza delle agenzie troverai:+ varietà: gestiamo migliaia di immobili ogni mese+ tranquillità: tripla garanzia che ti tutela da ogni rischio sull'acquistoalcuni risultati oggettivi nell'ultimo anno e mezzo:- 8.600 immobili gestiti- +500 clienti portati all'asta- +200 case aggiudicate, per un valore totale di 15 milionicontattaci subito per parlare con uno dei nostri consulenti che ti aiuterà a trovare la tua casa all'asta senza correre rischi.