home page > Annunci immobiliari in Italia > Calabria > Reggio di Calabria > Taurianova > Negozi uffici capannoni in vendita > Scheda immobile

Negozi uffici capannoni in vendita a Taurianova

COMPILA IL MODULO SOTTOSTANTE PER RICEVERE MAGGIORI INFORMAZIONI







Invia la richiesta ad altre agenzie
Accetto il trattamento dei miei dati



Gieffe taurianova

V.le prof. Ricci, 127
89029 Taurianova (RC)

3474885688    0966421090

Taurianova
Prezzo: info in agenzia
4
1
200



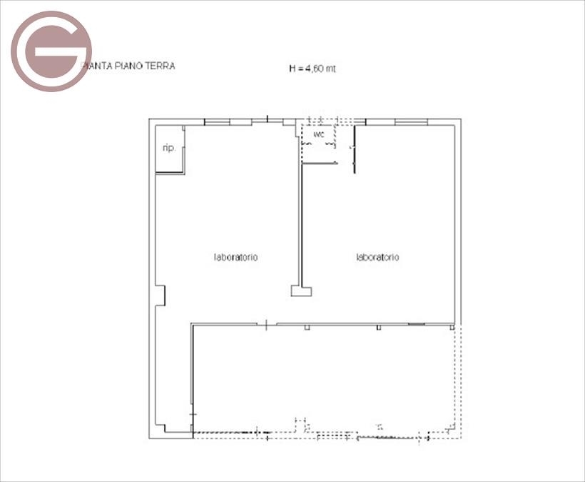
Descrizione:
Vendesi, a taurianova, in zona semi-centrale, un ampio locale commerciale in ottime condizioni già a reddito, situato al piano terra e distribuito su un unico livello.per consultare tutti i nostri annunci vai su: le notifiche sulle nostre pagine social per restare aggiornato in tempo reale.pubblichiamo, quotidianamente, nuovi annunci.ci trovi su:- instragram: @gieffetaurianova https:// facebook: agenzia gieffe taurianova https:// tik tok: https:// whatsapp:




Caratteristiche immobile:
Codice inserzione: 1761190828
Rif. Annuncio: 170_4515
Provincia: Reggio di Calabria
Comune: Taurianova
Superficie (Mq) : 200 Mq.
Tipo immobile: Negozi uffici capannoni
Anno costruzione/ristrutturazione: 1990
Camere: 4
Stato al rogito: Affittato
Bagni: 1

Costi:
Prezzo info in agenzia


Efficienza energetica:
Classe energetica: Immobile non soggetto all'obbligo di certificazione