home page > Annunci immobiliari in Italia > Calabria > Reggio di Calabria > Taurianova > Negozi uffici capannoni in vendita > Scheda immobile

Negozi uffici capannoni in vendita a Taurianova

COMPILA IL MODULO SOTTOSTANTE PER RICEVERE MAGGIORI INFORMAZIONI







Invia la richiesta ad altre agenzie
Accetto il trattamento dei miei dati



Gieffe taurianova

V.le prof. Ricci, 127
89029 Taurianova (RC)

3474885688    0966421090

Taurianova
Prezzo: € 120.000
183



Descrizione:
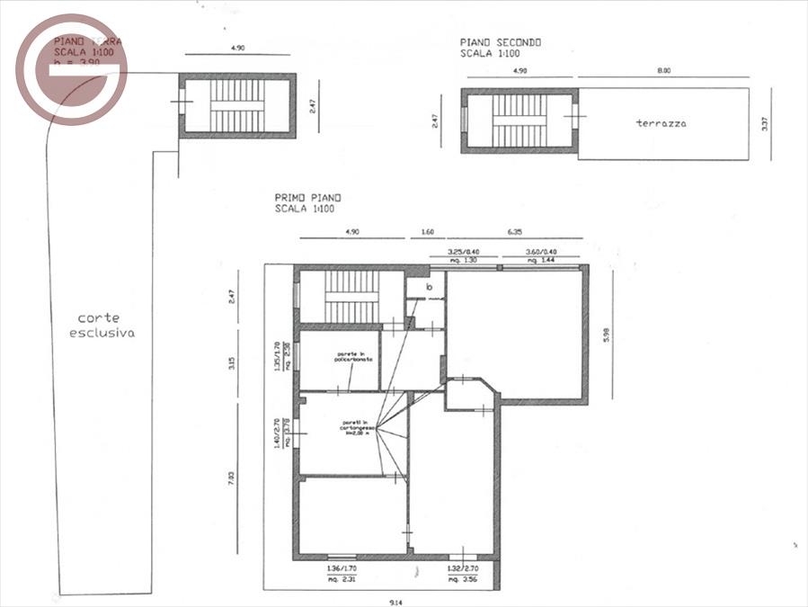
Gieffe immobiliare propone in vendita a taurianova, in zona semi-centrale, un locale commerciale situato al 1°piano di una palazzina su due livelli, con ingresso indipendente. L'immobile dispone di corte esclusiva e terrazza al secondo piano di circa 27 mq. Grazie alla sua versatilità, si presta per essere adibito a b&b o, previo cambio di destinazione d'uso, come abitazione. Ottima soluzione per investimento o per chi desidera avviare un'attività ricettiva. ( rif.1530 )per consultare tutti i nostri annunci vai su: le notifiche sulle nostre pagine social per restare aggiornato in tempo reale. Pubblichiamo, quotidianamente, nuovi annunci.ci trovi su:- instagram: @gieffetaurianova https:// facebook: agenzia gieffe taurianova https:// tik tok: https:// whatsapp:




Caratteristiche immobile:
Codice inserzione: 1772772023
Rif. Annuncio: 170_5560
Provincia: Reggio di Calabria
Comune: Taurianova
Superficie (Mq) : 183 Mq.
Tipo immobile: Negozi uffici capannoni
Stato al rogito: Libero

Costi:
Prezzo € 120.000


Efficienza energetica:
Classe energetica: Immobile non soggetto all'obbligo di certificazione