home page > Annunci immobiliari in Italia > Campania > Caserta > Alvignano > Negozi uffici capannoni in vendita > Scheda immobile

Negozi uffici capannoni in vendita a Alvignano

COMPILA IL MODULO SOTTOSTANTE PER RICEVERE MAGGIORI INFORMAZIONI







Invia la richiesta ad altre agenzie
Accetto il trattamento dei miei dati



Quimmo agency

Via galileo galilei 6
48018 Faenza (RA)

0299944698

Alvignano
Prezzo: € 45.000
1
54



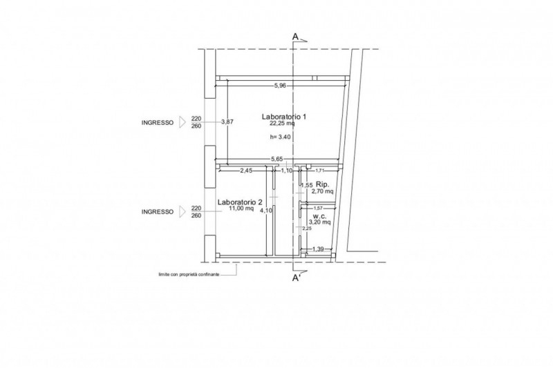
Descrizione:
Nel centro storico di alvignano con accesso su corso umberto i, proponiamo in vendita locale commerciale a reddito al momento utilizzato come supermercato.l'immobile è caratterizzato e disposto per l'utilizzo attuale, suddiviso in due stanze adibite alla vendita dei prodotti, un ripostiglio ed un bagno.corso umberto i è una delle principali vie della città che garantiscono ottima visibilità a qualsiasi attività uno voglia insediare.superficie circa: 54 mq.




Caratteristiche immobile:
Codice inserzione: 1757386649
Rif. Annuncio: 24009
Provincia: Caserta
Comune: Alvignano
Superficie (Mq) : 54 Mq.
Tipo immobile: Negozi uffici capannoni
Stato immobile: usato
Bagni: 1

Costi:
Prezzo € 45.000


Efficienza energetica: