home page > Annunci immobiliari in Italia > Campania > Caserta > Alvignano > Negozi uffici capannoni in vendita > Scheda immobile

Negozi uffici capannoni in vendita a Alvignano

COMPILA IL MODULO SOTTOSTANTE PER RICEVERE MAGGIORI INFORMAZIONI







Invia la richiesta ad altre agenzie
Accetto il trattamento dei miei dati



Quimmo agency

Via galileo galilei 6
48018 Faenza (RA)

0299944698

Alvignano
Prezzo: € 250.000
2
665



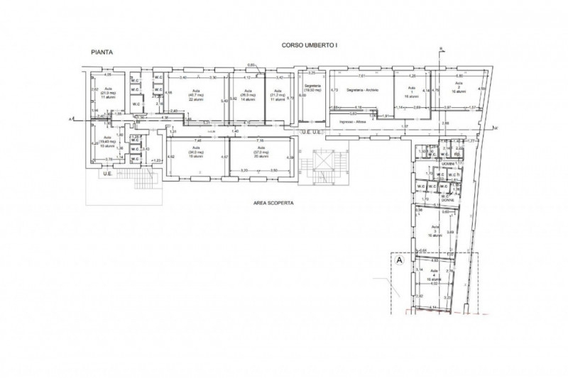
Descrizione:
L'immobile oggetto di vendita si trova al secondo piano su quattro e misura complessivamente 665 mq.ottimo stato manutentivo.lo stabile si compone di due sezioni intervallate dal vano scale e da una stanza, attualmente adibita a segreteria.una delle due sezioni, al momento è occupata da un istituto scolastico ed è ripartita in sei stanze adibite ad aule, due stanze destinate ad ospitare i servizi igienici, otto in totale, e da un'ampia terrazza.la seconda sezione, attualmente libera, è, invece, composta da cinque stanze adibite ad aule e può contare su dieci bagni. Completano la proprietà due lunghi corridoi.




Caratteristiche immobile:
Codice inserzione: 1760670113
Rif. Annuncio: 24010
Provincia: Caserta
Comune: Alvignano
Superficie (Mq) : 665 Mq.
Tipo immobile: Negozi uffici capannoni
Stato immobile: usato
Bagni: 2

Costi:
Prezzo € 250.000


Efficienza energetica: