Modifica ricerca
Vendita - Affitto
Provincia:
Comune:
Tipologia:
Prezzo:
Numero camere:

 Cerca in vendita anche

Immobili in vendita a Marcianise

 Cerca in affitto anche

Immobili in affitto a Marcianise

Annunci immobiliari di vendita e affitto a Marcianise

  Ultimi 30 annunci immobiliari inseriti nel comune di Marcianise
Marcianise (CE)    |    € 79.000    |    550 Mq    |    Rif. BM 943

 6

Vendita terreni
In vendita a marcianise, nella tranquilla e ben collegata zona macello, proponiamo terreno edificabile di circa 550 mq, ideale per chi desidera realizzare la casa dei propri sogni oppure per chi è alla ricerca di un interessante investimento immobiliare.il lotto, situato in una posizione strategica e facilmente accessibile, offre ampie possibilità edificatorie e rappresenta la soluzione perfetta per la costruzione di una villa indipendente, una bifamiliare o un piccolo progetto residenziale.la zona è apprezzata per la sua t...
Visualizza i dettagli >>


Marcianise (CE)    |    € 369.000    |    160 Mq    |    Rif. BM 876

 3

Vendita negozi uffici capannoni
Locale commerciale locato a poste italiane ottima renditaproponiamo in vendita a marcianise, in corso matteotti, zona stazione, locale commerciale attualmente locato a poste italiane, con rendita mensile attiva.l'immobile si trova in posizione strategica, caratterizzata da elevato passaggio pedonale e veicolare e ottima visibilità commerciale. La presenza di un conduttore di primaria importanza nazionale rappresenta un elemento di solidità e stabilità dell'investimento.la soluzione è particolarmente indicata per inve...
Visualizza i dettagli >>


Marcianise (CE)    |    € 50.000    |    85 Mq    |    Rif. BM 942

 8

Vendita appartamento
Nel comune di marcianise, in contesto tranquillo e ben collegato, proponiamo in vendita un appartamento di 85 mq situato al terzo piano di un piccolo condominio.composizione interna:6,5 vani ben distribuiti3 camere 1 bagnocucinottoambienti luminosi e funzionalil'immobile necessita di ristrutturazione, rappresentando cosù un'ottima opportunità per chi desidera personalizzare gli spazi secondo il proprio gusto o per chi è alla ricerca di un investimento con potenziale di rivalutazione.plus dell'immobile:cantina di 6 mq al pia...
Visualizza i dettagli >>


Marcianise (CE)    |    € 600    |    100 Mq    |    Rif. Cod. rif 3284788ACU

 8

Affitti negozi uffici capannoni
Proponiamo in affitto ufficio posto al primo piano, della superficie catastale di circa 100 mq, facente parte del fabbricato industriale sito nella zona industriale di marcianise (ce) località tavernetta a pochi metri dallo svincolo di caserta sud, dalla superstrada, scalo merci e interporto.l'immobile, è composto da tre stanze e un bagno.possibilità di parcheggio interno. spese condominiali ? 60,00. avviso: le visite agli immobili sono previsite solo per i clienti che dimostrano di avere le referenze reddituali idonee al p...
Visualizza i dettagli >>


Marcianise (CE)    |    € 89.000    |    68 Mq    |    Rif. LCV10

 8

Vendita negozi uffici capannoni
Marcianise locale commerciale in centro questo negozio in vendita si trova a marcianise, una vivace citt della provincia di caserta, ed situato in una posizione strategica nel cuore del centro. L'immobile si presenta in ottime condizioni e gode di un'ampia superficie di 68 metri quadrati, distribuiti interamente al piano terra. Attualmente libero al rogito, questo negozio pronto ad accogliere i nuovi proprietari desiderosi di avviare la propria attivit.l'entrata principale si affaccia su una luminosa vetrina, che garantisce un'ottima visibilit ...
Visualizza i dettagli >>


Marcianise (CE)    |    € 79.000    |    70 Mq    |    Rif. BM 888

 8

Vendita appartamento
Benvenuti a marcianise, nel cuore del centro storico! vi presentiamo un'affascinante opportunità abitativa che non potrete lasciarvi sfuggire. Situato in piazza umberto i, questo splendido appartamento ristrutturato è pronto ad accogliervi nella sua calda atmosfera.immaginatevi entrare in questa casa e subito notare l'attenzione ai dettagli che caratterizza ogni suo angolo. L'appartamento è situato al 1° piano e misura circa 70 mq. La cucina, luminosa e moderna, è il luogo perfetto per preparare gustose ricette e...
Visualizza i dettagli >>


Marcianise (CE)    |    € 1.100.000    |    1120 Mq    |    Rif. 2037

 8

Vendita case e ville indipendenti
- marcianise - proponiamo invenditaunintero stabiledella superficie complessiva di circam 1.120, situato in una posizione altamente strategica e facilmente raggiungibile, a meno di un chilometro dallo svincolocaserta suddell'autostrada a1.la proprietà è dotata di un'ampia area esternadi circa m 1.600, ideale per parcheggi, spazi di manovra o future personalizzazioni.lo stabile si sviluppa su due livelli: ilpiano terraha una superficie di circam 745ed è caratterizzato da un'altezza interna di mt5,90, mentre ilprimo piano, di...
Visualizza i dettagli >>


Marcianise (CE)    |    € 1.680.000    |    1200 Mq    |    Rif. 1997

 8

Vendita negozi uffici capannoni
Marcianise proponiamo in vendita uncapannone industriale in fase di realizzazionedi circam 1.200 complessivi, cosù suddivisi:piano terradi circam 1.100, con altezza di mt10,15al colmo e sotto trave di mt8,50, di cuim 100destinati aduffici, con altezza di mt3,00;primo piano soppalcatodi circam 100, anch'esso adibito aduso ufficio, con altezza di mt3,00.completa la proprietà un'ampia area esternadi circam 1.000, ideale percarico/scarico merciemovimentazione di mezzi pesanti.l'immobile vanta unaposizione strategica, situato nelle imm...
Visualizza i dettagli >>


Marcianise (CE)    |    € 2.700.000    |    2400 Mq    |    Rif. 1996

 8

Vendita negozi uffici capannoni
Marcianise proponiamo in vendita uncapannone industriale in fase di realizzazionedi circam 2.400 complessivi, cosù suddivisi:piano terradi circam 2.200, con altezza al colmo di mt10,15e sotto trave di mt8,50, di cuim 100destinati adufficicon altezza di mt3,00;primo piano soppalcatodi circam 200, anch'esso adibito aduso ufficio,con altezza di mt3,00.completa la proprietà un'ampia area esternadi circam 2.000, ideale percarico/scarico merciemovimentazione di mezzi pesanti.l'immobile vanta unaposizione strategica, situato nelle immedi...
Visualizza i dettagli >>


Marcianise (CE)    |    € 280.000    |    173 Mq    |    Rif. Cod. rif 3258090VRG

 8

Vendita case e ville indipendenti
In posizione strategica, nelle immediate vicinanze del liceo scientifico di marcianise, proponiamo in vendita una casa indipendente di 173 mq distribuita su tre livelli, con ampi spazi esterni e ottime potenzialità abitative.la proprietà si apre su una comoda veranda e un ampio cortile privato con possibilità di parcheggiare più auto o rilassarsi con amici e parenti per cene all'aperto. Al piano terra l?abitazione è composta da una spaziosa zona giorno con cucina e salone in ambiente open space, una camera mat...
Visualizza i dettagli >>


Marcianise (CE)    |    info in agenzia    |    340 Mq    |    Rif. BM 180

 8

Vendita negozi uffici capannoni
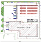
Proponiamo in vendita un ampio locale commerciale di circa 250 mq, già predisposto per attività legate alla preparazione e somministrazione di cibi per aziende e asporto. L'immobile è dotato di tutte le autorizzazioni sanitarie e impiantistiche necessarie per questo tipo di utilizzo, rendendolo una soluzione pronta all'uso per chi opera nel settore food.la proprietà si completa con un deposito al piano seminterrato di 90 mq, perfetto come magazzino, cella o stoccaggio, e quattro posti auto interni, ideali per persona...
Visualizza i dettagli >>


Marcianise (CE)    |    € 339.000    |    300 Mq    |    Rif. BM 931

 8

Vendita case e ville indipendenti
In zona centrale e ben servita di marcianise, proponiamo in esclusiva la vendita di una soluzione indipendente di ampia metratura, ideale per famiglie o per chi desidera investire in un immobile di pregio con grande potenziale.l'immobile sorge su un lotto di 800 mq e si compone di: un appartamento al piano rialzato di 100 mq da ultimare (attualmente allo stato grezzo),un appartamento al primo piano di 200 mq, pronto da abitare, composto da 6 vani, 3 camere da letto, doppi servizi, un soggiorno doppio e una cucina spaziosa con camino a vista, pe...
Visualizza i dettagli >>


Marcianise (CE)    |    € 155.000    |    164 Mq    |    Rif. Cod. rif 3248470VRG

 8

Vendita appartamento
In contesto tranquillo e riservato, proponiamo in vendita una porzione di fabbricato situata all'interno di una corte, sviluppata su più livelli e caratterizzata da ampi spazi abitativi. L?abitazione si trova al primo piano e si compone di una luminosa zona giorno con soggiorno e cucina a vista, tre camere da letto, di cui una matrimoniale dotata di cabina armadio e bagno privato, oltre a un secondo servizio.completano la proprietà una comoda cantina al piano seminterrato, un ripostiglio al piano terra all?interno della corte, e u...
Visualizza i dettagli >>


Marcianise (CE)    |    € 10.000    |    600 Mq    |    Rif. 1869

 8

Affitti negozi uffici capannoni
Marcianise proponiamo in affitto un locale commerciale di circa m 600, distribuito su due livelli (piano terra e primo piano) di circa m 300 cadauno, collegati internamente da ascensore. La soluzione, di nuova costruzione, è in fase di completamento.a completare la proprietà, un'ampia area esterna condominiale di circa m 1.800, ideale per parcheggio di dipendenti e clienti o per esigenze logistiche.l'immobile verrà consegnato completamente rifinito, offrendo un ambiente moderno e funzionale, ideale per ospitare qualsiasi ti...
Visualizza i dettagli >>


Marcianise (CE)    |    € 4.000    |    300 Mq    |    Rif. 1868

 8

Affitti negozi uffici capannoni
Marcianise proponiamo in affitto un locale commerciale di circa m 300 situato al primo piano servito da ascensore, di uno stabile di nuova costruzione, attualmente in fase di realizzazione.a completare la proprietà, un'ampia area esterna condominiale di circa m 1.800, ideale per parcheggio di dipendenti e clienti o per esigenze logistiche.l'immobile verrà consegnato completamente rifinito, offrendo un ambiente moderno e funzionale, ideale per ospitare qualsiasi tipo di attività commerciale.gode di una posizione strategica, ...
Visualizza i dettagli >>


Marcianise (CE)    |    € 6.000    |    300 Mq    |    Rif. 1867

 8

Affitti negozi uffici capannoni
Marcianise proponiamo in affitto un locale commerciale di circa m 300 situato al piano terra di uno stabile di nuova costruzione, attualmente in fase di realizzazione.a completare la proprietà, un'ampia area esterna condominiale di circa m 1.800, ideale per parcheggio di dipendenti e clienti o per esigenze logistiche.l'immobile verrà consegnato completamente rifinito, offrendo un ambiente moderno e funzionale, ideale per ospitare qualsiasi tipo di attività commerciale.gode di una posizione strategica, nelle immediate vicina...
Visualizza i dettagli >>


Marcianise (CE)    |    € 10.000    |    600 Mq    |    Rif. 1866

 8

Affitti negozi uffici capannoni
Marcianise proponiamo in affitto un ufficio di circa m 600, distribuito su due livelli (piano terra e primo piano)di circa m 300 cadauno, collegati internamente da ascensore. La soluzione, di nuova costruzione, è in fase di completamento e sarà consegnata completamente rifinita.a completare la proprietà, un'ampia area esterna condominiale di circa m 1.800, ideale per parcheggio di dipendenti e clienti o per esigenze logistiche.gode di una posizione strategica, nelle immediate vicinanze dei principali svincoli dell'asse medi...
Visualizza i dettagli >>


Marcianise (CE)    |    € 4.000    |    300 Mq    |    Rif. 1865

 8

Affitti negozi uffici capannoni
Marcianise proponiamo in affitto un ufficio di circa m 300 situato al primo piano di uno stabile di nuova costruzione, attualmente in fase di realizzazione.a completare la proprietà, un'ampia area esterna condominiale di circa m 1.800, ideale per parcheggio di dipendenti e clienti o per esigenze logistiche.l'immobile verrà consegnato completamente rifinito, offrendo un ambiente moderno, funzionale e rappresentativo.gode di una posizione strategica, nelle immediate vicinanze dei principali svincoli dell'asse mediano e delle arterie...
Visualizza i dettagli >>


Marcianise (CE)    |    € 6.000    |    300 Mq    |    Rif. 1864

 8

Affitti negozi uffici capannoni
Marcianise proponiamo in affitto un ufficio di circa m 300 situato al piano terra di uno stabile di nuova costruzione, attualmente in fase di realizzazione.a completare la proprietà, un'ampia area esterna condominiale di circa m 1.800, ideale per parcheggio di dipendenti e clienti o per esigenze logistiche.l'immobile verrà consegnato completamente rifinito, offrendo un ambiente moderno, funzionale e rappresentativo.gode di una posizione strategica, nelle immediate vicinanze dei principali svincoli dell'asse mediano e delle arterie...
Visualizza i dettagli >>


Marcianise (CE)    |    € 31.000    |    4400 Mq    |    Rif. 1861

 8

Affitti negozi uffici capannoni
Marcianise proponiamo in affitto un capannone industriale di circa m 4.400, cosù suddivisi: piano terra di circa m 4.000, con un'altezza sotto trave di mt 12 e un'altezza di mt 13 sotto colmo; primo piano ad uso uffici di circa m 200; secondo piano ad uso uffici di circa m 200.l'ampia area esterna di circa m 8.000 consente agevoli operazioni di carico e scarico merci, manovra di mezzi pesanti e dispone di spazio sufficiente per il parcheggio di automezzi. L'immobile si presenta in buone condizioni generali ed è già dotato d...
Visualizza i dettagli >>


Marcianise (CE)    |    € 50.000    |    4400 Mq    |    Rif. 1860

 8

Affitti negozi uffici capannoni
Marcianise proponiamo in affitto un capannone industriale di circa m 4.400, cosù suddivisi: piano terra di circa m 4.000, con un'altezza sotto trave di mt 12 e un'altezza di mt 13 sotto colmo; primo piano ad uso uffici di circa m 200; secondo piano ad uso uffici di circa m 200.a completare la proprietà vi è una vasta area esterna di circa m 8.000, adatta al parcheggio di mezzi pesanti, alle manovre di bilici e alle operazioni di carico e scarico merci. L'immobile si presenta in ottimo stato manutentivo e già completa...
Visualizza i dettagli >>


Marcianise (CE)    |    € 175.000    |    179 Mq    |    Rif. Cod. rif 3240394VCG

 8

Vendita attività commerciali
Nel centro polifunzionale 'polo della qualità', proponiamo un locale commerciale posto al piano primo di ca. 179 metri quadrati interni con due ampie vetrine. Il locale si adatta ai più svariati tipi di attività ed è provvisto di comodo deposito al piano interrato di ca. 49 mq oltre a due comodi posti auto coperti. Il ?polo della qualità? si sviluppa su vari edifici disposti attorno a tre corti e si articola fino ad un massimo di tre livelli fuori terra destinati prevalentemente a negozi, oltre un livello semi...
Visualizza i dettagli >>


Marcianise (CE)    |    € 297.000    |    193 Mq    |    Rif. Cod. rif 3236407VRG

 8

Vendita case e ville a schiera
Nel comune di marcianise, nelle immediate vicinanze con vari servizi quali scuole, supermercati, farmacie, etc., disponiamo di una villetta a schiera in 'parco il cigno'. la soluzione, in buono stato e con una superficie di circa 193 mq. Interni è cosù disposta: - piano terra, con zona giorno e nello specifico soggiorno, cucina, un bagno e doppia area esterna di esclusiva proprietà; - piano primo, con zona notte e precisamente disimpegno, tre camere da letto, un bagno e doppi balconi; - piano secondo, composta da un'area op...
Visualizza i dettagli >>


Marcianise (CE)    |    € 500    |    33 Mq    |    Rif. Cod. rif 3236260ACG

 8

Affitti attività commerciali
Nel comune di marcianise, in piazza caduti di nassirya, forte zona commerciale e di grande passaggio carrabile e pedonale, disponiamo di un locale di categoria c/1, per cui adatto a varie utilità, come commerciale, ufficio e/o artigianale. il locale, con un metratura di circa 33 mq., si compone di un unico ambiente, con antibagno e bagno, con una vetrina fronte strada. avviso: le visite agli immobili sono previsite solo per i clienti che dimostrano di avere le referenze reddituali idonee al pagamento del canone di affitto richiesto. p.s....
Visualizza i dettagli >>


Marcianise (CE)    |    € 239.000    |    335 Mq    |    Rif. BM 929

 8

Vendita case e ville indipendenti
A marcianise, in zona centrale e ben servita, proponiamo in vendita una soluzione indipendente ideale per più nuclei familiari o per chi desidera avviare un'attività ricettiva. La proprietà si trova in un contesto civile e tranquillo, perfetto per chi cerca ampi spazi e comfort.l'immobile si sviluppa su due livelli abitativi:piano rialzato: due appartamenti di 90 mq e 55 mq, ben distribuiti e luminosi.primo piano: altri due appartamenti di 100 mq e 90 mq, con ambienti spaziosi e versatili.a completare la proprietà:un...
Visualizza i dettagli >>


Marcianise (CE)    |    € 6.000.000    |    3950 Mq    |    Rif. 1723

 8

Vendita negozi uffici capannoni
Marcianise proponiamo in vendita un capannone industriale di circa m 3.950 in fase di costruzione, cosù suddivisi:· piano terra di circa m 3.570, con un'altezza di mt 12, di cui circa m 380 ad uso uffici;· uffici siti al primo piano soppalcato di circa m 380.completa la proprietà un'ampia area esterna di circa m 5.000, ideale per manovre e operazioni di carico/ scarico merci.l'immobile verrà consegnato completo di cabina elettrica e rappresenta una soluzione eccellente grazie alla sua vicinanza ai principali svincoli dell...
Visualizza i dettagli >>


Marcianise (CE)    |    € 5.650.000    |    3770 Mq    |    Rif. 1722

 8

Vendita negozi uffici capannoni
Marcianise proponiamo in vendita un capannone industriale di circa m 3.770 in fase di costruzione, cosù suddivisi:· piano terra di circa m 3.430, con un'altezza di mt 12, di cui circa m 340 ad uso uffici;· uffici siti al primo piano soppalcato di circa m 340.completa la proprietà un'ampia area esterna di circa m 5.000, ideale per manovre e operazioni di carico/ scarico merci.l'immobile verrà consegnato completo di cabina elettrica e rappresenta una soluzione eccellente grazie alla sua vicinanza ai principali svincoli dell...
Visualizza i dettagli >>


Marcianise (CE)    |    € 11.600.000    |    7720 Mq    |    Rif. 1721

 8

Vendita negozi uffici capannoni
Marcianise proponiamo in vendita un capannone industriale di circa m 7.720 in fase di costruzione, cosù suddivisi:· piano terra di circa m 7.000, con un'altezza di mt 12, di cui circa m 720 ad uso uffici situati alle due estremità del capannone. Gli uffici sono cosù suddivisi:- primo ufficio di circa m 340;- secondo ufficio di circa m 380;· uffici siti al primo piano soppalcato di circa m 720 disposti alle due estremità, come descritto per il piano terra.completa la proprietà un'ampia area esterna di circa m...
Visualizza i dettagli >>


Marcianise (CE)    |    € 290.000    |    186 Mq    |    Rif. Cod. rif 3201741VRG

 8

Vendita case e ville a schiera
Villa a schiera ad uso abitativo situata nel comune di marcianise (ce) a pochi passi del casello autostradale di caserta sud, costruita nel 1994, con una superficie di 186 mq. La proprietà dispone di 5 locali tra cui soggiorno singolo, cucina abitabile, studio, taverna e cantina. Presenti 3 camere da letto, 3 balconi e un 3 bagni. Caratteristiche aggiuntive includono un camino, ripostiglio, giardino/terrazzo privato, citofono, impianto di riscaldamento, numero box auto: 1. Gli infissi sono in noce tanganica con doppi vetri. La villa si t...
Visualizza i dettagli >>


Marcianise (CE)    |    € 150.000    |    3119 Mq    |    Rif. Cod. rif 3210537VCG

 2

Vendita terreni
Proponiamo in vendita un terreno edificabile per attrezzature sportive di 3.119 mq situato a marcianise, ideale per la realizzazione di strutture sportive come palestre, campi da calcio, tennis, basket o altre attrezzature sportive. Il terreno è facilmente accessibile, ben posizionato in una zona in espansione e ben collegato con le principali vie di comunicazione.superficie generosa e con tutte le possibilità di costruzione per impianti sportivi.per maggiori informazioni e dettagli, contattaci al ...
Visualizza i dettagli >>