home page > Annunci immobiliari in Italia > Campania > Napoli > Quarto > appartamenti in vendita > Scheda immobile

Appartamento in vendita a Quarto

COMPILA IL MODULO SOTTOSTANTE PER RICEVERE MAGGIORI INFORMAZIONI







Invia la richiesta ad altre agenzie
Accetto il trattamento dei miei dati



Montecarlo re

Via mergellina 220
80121 Napoli

081667149

Quarto
Prezzo: € 210.000
G
4
2
120
Su due livelli
60 Mq



Descrizione:
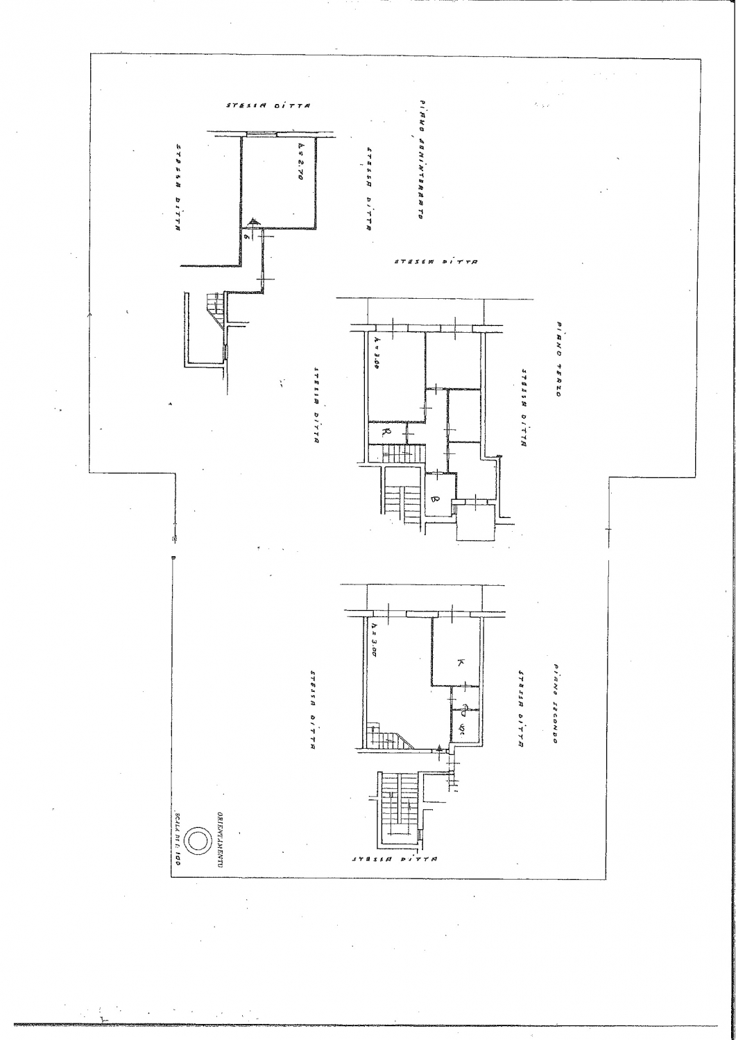
QUARTO VIA VAIANI Nel cuore della città in un piccolo parco riservato e ben curato, proponiamo in vendita un appartamento su 2 livelli che coniuga centralità, confort e ampi spazi. Al primo livello troviamo un accogliente ingresso che conduce all'ampio salone, la cucina e un bagno. Una comoda scala interna porta al secondo livello, dove si sviluppa la zona notte con tre camere da letto, due ripostigli e un ulteriore bagno. La proprietà è completata da una cantinola spaziosa e funzionale al piano seminterrato, un posto auto assegnato, un posto auto a rotazione e soprattutto da un terrazzo di copertura di circa 60 mq, ideale per vivere momenti di relax all'aperto. La posizione centrale e ben servita, rende questa soluzione ideale per chi cerca un abitazione comoda e luminosa, in un contesto tranquillo a pochi passi da tutti i principali servizi.




Caratteristiche immobile:
Codice inserzione: 1762855931
Rif. Annuncio: 2721
Provincia: Napoli
Comune: Quarto
Superficie (Mq) : 120 Mq.
Tipo immobile: Appartamento
Stato immobile: usato
Anno costruzione/ristrutturazione: 1970
Piano: Su due livelli
Camere: 4
Stato al rogito: Libero
Esposizione: Sud/Ovest
Posti auto coperti: 1 posto auto
Giardino : 60 Mq.
Bagni: 2
Terrazze: 1

Costi:
Prezzo € 210.000
Spese condominiali: € 40


Efficienza energetica:
Classe energetica: G
Indice di prestazione energetica (EPgl): 175 kWh/mq annui
Riscaldamento: autonomo
Tipologia riscaldamento: Metano