home page > Annunci immobiliari in Italia > Campania > Napoli > Torre del Greco > Garage in vendita > Scheda immobile

Garage in vendita a Torre del Greco

COMPILA IL MODULO SOTTOSTANTE PER RICEVERE MAGGIORI INFORMAZIONI







Invia la richiesta ad altre agenzie
Accetto il trattamento dei miei dati



Vitiello immobiliare

Via alcide de gasperi 67
80059 Torre del Greco (NA)

08119177742    0    3392034630    Riferimenti: Giuseppe Vitiello

Torre del Greco
Prezzo: € 55.000
70
3



Descrizione:
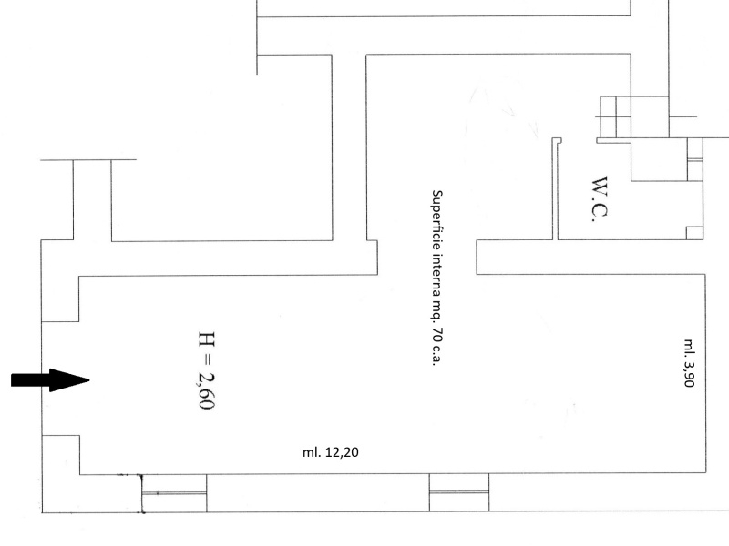
torre del greco, (na), via litoranea, 30, proponiamo in vendita un box auto doppio/deposito, di 70 mq ca., cat. C2, provvisto di bagno. L' immobile, grazie alle generosa metratura à l' ideale sia come box auto, utile  ad ospitare due auto, o ancora come deposito. L' immobile, in questioe, si trova in una zona strategica, parte iniziale della litoranea, e vista la poca disponibilità di posti auto coperti, e spazi cantinola,  à una soluzione preziosa per chi abita in via litoranea e dintorni, o ancora per le attività commerciali che necessitano di uno spazio per deposito materiale. Classe energetica g. 




Caratteristiche immobile:
Codice inserzione: 1764962900
Rif. Annuncio: 1849089
Provincia: Napoli
Comune: Torre del Greco
Superficie (Mq) : 70 Mq.
Tipo immobile: Garage
Anno costruzione/ristrutturazione: 1960
Posti auto scoperti: 3 posti auto

Costi:
Prezzo € 55.000


Efficienza energetica:
Indice di prestazione energetica (EPgl): 3.51 kWh/mq annui