home page > Annunci immobiliari in Italia > Emilia-Romagna > Bologna > Argelato > Negozi uffici capannoni in vendita > Scheda immobile

Negozi uffici capannoni in vendita a Argelato

COMPILA IL MODULO SOTTOSTANTE PER RICEVERE MAGGIORI INFORMAZIONI







Invia la richiesta ad altre agenzie
Accetto il trattamento dei miei dati



Quimmo agency

Via galileo galilei 6
48018 Faenza (RA)

0299944698

Argelato
Prezzo: € 1.470.000
3795



Descrizione:
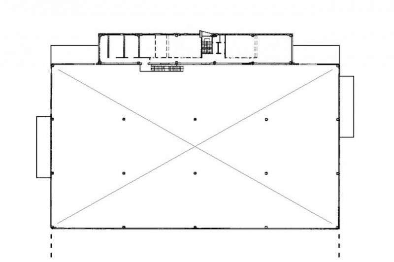
Vendesi capannone con uffici e cabina elettrica sito ad argelato (bo), via della tecnica 7. Il contesto è di prima periferia, tranquillo e con traffico regolare. La zona è urbanizzata e ben collegata ai vicini centri ove si trovano i principali servizi, a bologna e alla autostrada a13 (casello bologna interporto). Area caratterizzata da strutture produttive e commerciali, con buona possibilità di parcheggio. Trattasi di capannone realizzato nel 1996 con struttura in cemento armato prefabbricato, tamponamenti in pannelli e copertura a shed. Parte produttiva al piano terra con ampio laboratorio. Blocco uffici sul fronte strada, sviluppato su due piani con spogliatoi, servizi e locali tecnici. Capannone collegato sul retro a laboratorio di altrui proprietà. Travi da carroponte. Climatizzazione ad aria. Portoni per accesso ai mezzi pesanti coperti da tettoie. Corte carrabile sui lati liberi, pavimentata ed illuminata. Area parzialmente recintata con due cancelli carrabili, verde, cabina elettrica e corpo accessorio esterno. Immobile libero. Condizioni discrete.per maggiori dettagli consultare i documenti allegati.ape in corso di definizionesuperficie commerciale: 3795 mqpiena proprietà di:capannone (cf): foglio 26 particella 351 subalterno 3 d/1cabina elettrica (cf): foglio 26 particella 351 subalterno 2 d/1area di sedime (ct): foglio 26 particella 351 ente urbano




Caratteristiche immobile:
Codice inserzione: 1757386935
Rif. Annuncio: 14879
Provincia: Bologna
Comune: Argelato
Superficie (Mq) : 3795 Mq.
Tipo immobile: Negozi uffici capannoni
Stato immobile: usato
Anno costruzione/ristrutturazione: 1996

Costi:
Prezzo € 1.470.000


Efficienza energetica:
Riscaldamento: autonomo