home page > Annunci immobiliari in Italia > Emilia-Romagna > Bologna > Castel Guelfo di Bologna > Terreni in vendita > Scheda immobile

Terreni in vendita a Castel Guelfo di Bologna

COMPILA IL MODULO SOTTOSTANTE PER RICEVERE MAGGIORI INFORMAZIONI







Invia la richiesta ad altre agenzie
Accetto il trattamento dei miei dati



Bologna mazzini

Via mazzini 150
40121 Bologna

0510510330

Castel Guelfo di Bologna
Prezzo: € 230.000
2500



Descrizione:
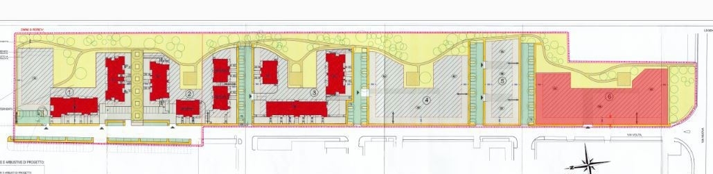
Castel guelfo. Si propone in vendita un terreno edificabile con una superficie lorda vendibile di 2500 mq e 1856 mq di superficie utile edificabile. Confina con lotti edificati con villette a schiera e villette indipendenti con accesso da strada asfaltata. Per ulteriori informazioni contattare grimaldi immobiliare in ufficio al n o via mail a rif. 1686




Caratteristiche immobile:
Codice inserzione: 1687736349
Rif. Annuncio: Rif. 1686VRG
Provincia: Bologna
Comune: Castel Guelfo di Bologna
Superficie (Mq) : 2500 Mq.
Tipo immobile: Terreni

Costi:
Prezzo € 230.000


Efficienza energetica: