home page > Annunci immobiliari in Italia > Emilia-Romagna > Bologna > Castel Maggiore > Negozi uffici capannoni in vendita > Scheda immobile

Negozi uffici capannoni in vendita a Castel Maggiore

COMPILA IL MODULO SOTTOSTANTE PER RICEVERE MAGGIORI INFORMAZIONI







Invia la richiesta ad altre agenzie
Accetto il trattamento dei miei dati



Quimmo agency

Via galileo galilei 6
48018 Faenza (RA)

0299944698

Castel Maggiore
Prezzo: info in agenzia
D
2
262



Descrizione:
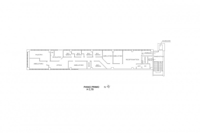
Immobile a reddito costituito da ufficio facente parte di un complesso commerciale sviluppato su due piani fuori terra sito in via gramsci n. 221 nel comune di castelmaggiore (bo) in zona centrale.l'immobile è costituito da ambulatorio con sala di attesa, più vani uso laboratorio, box di terapia e servizi igienici, sito al piano primo con accesso dal piano sottostante tramite scala esclusiva e ascensore.ottimi collegamenti viari e ampia disponibilità di parcheggio.immobile locato con regolare contratto.classe energetica: d indice di prestazione energetica 261,23 kwh/mq annosuperficie ufficio: 262 mqpiena proprietà:a/10 (cf) foglio 11 particella 219 subalterno 7




Caratteristiche immobile:
Codice inserzione: 1760929589
Rif. Annuncio: 24040
Provincia: Bologna
Comune: Castel Maggiore
Superficie (Mq) : 262 Mq.
Tipo immobile: Negozi uffici capannoni
Stato immobile: usato
Bagni: 2

Costi:
Prezzo info in agenzia


Efficienza energetica:
Classe energetica: D