home page > Annunci immobiliari in Italia > Emilia-Romagna > Bologna > Pianoro > appartamenti in vendita > Scheda immobile

Appartamento in vendita a Pianoro

COMPILA IL MODULO SOTTOSTANTE PER RICEVERE MAGGIORI INFORMAZIONI







Invia la richiesta ad altre agenzie
Accetto il trattamento dei miei dati



Mondore srl

Via castiglione 274
40121 Bologna

051842283    Riferimenti: Agenzia Sasso Marconi

Pianoro
Prezzo: € 210.000
D
2
2
110
Piano terra



Descrizione:
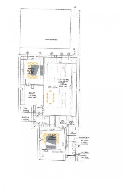
Rastignano, comodo a tutti i servizi di bologna proponiamo in vendita laboratorio di circa mq 110, con possibilità di avere il cambio d'uso in appartamento la soluzione abitativa sarebbe composta da: ingresso indipendente su ampio soggiorno con cucina a vista, 2 camere matrimoniali, 2 bagni e cabina armadio.inoltre dispone di un giardino esclusivo recintabile, vi è la possibilità di modificare il progetto in base alle esigenze dell'acquirente.le spese condominiali sono pari a zero.il prezzo richiesto è di € 210.000 e include già i costi per il cambio d'uso e progetto già depositato in comune con parere favorevole.




Caratteristiche immobile:
Codice inserzione: 1773805267
Rif. Annuncio: SM210GT
Provincia: Bologna
Comune: Pianoro
Zona: Pianoro Vecchio  
Superficie (Mq) : 110 Mq.
Tipo immobile: Appartamento
Anno costruzione/ristrutturazione: 1990
Piano: Piano terra
Camere: 2
Bagni: 2

Costi:
Prezzo € 210.000


Efficienza energetica:
Classe energetica: D
Indice di prestazione energetica (EPgl): 408.46 kWh/mq annui
Riscaldamento: autonomo