home page > Annunci immobiliari in Italia > Emilia-Romagna > Bologna > Sant'Agata Bolognese > Terreni in vendita > Scheda immobile

Terreni in vendita a Sant'Agata Bolognese

COMPILA IL MODULO SOTTOSTANTE PER RICEVERE MAGGIORI INFORMAZIONI







Invia la richiesta ad altre agenzie
Accetto il trattamento dei miei dati



San giovanni in persiceto

Circonvallazione liberazione 1
40017 San Giovanni in Persiceto (BO)

0516879053

Sant'Agata Bolognese
Prezzo: € 450.000
650



Descrizione:
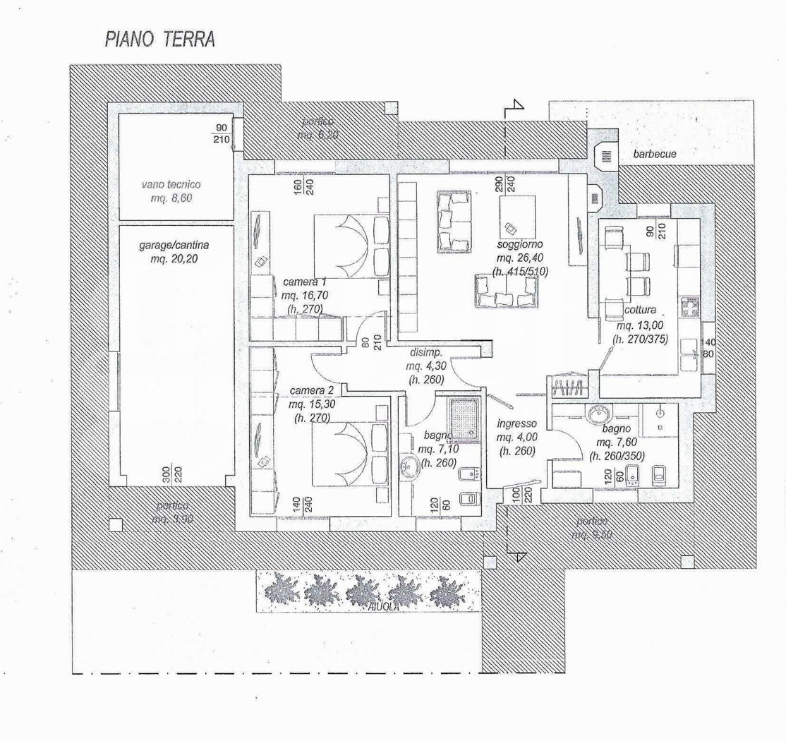
Gabetti san giovanni in persiceto propone gli ultimi 3 lotti disponibili nella nuova lottizzazione adiacente al centro di sant'agata bolognese (bo), dove potrai realizzare la villa dei tuoi sogni. ogni lotto è di circa 650 mq con possibilità di creare una villa fino a 170 mq commerciali. Le ville, in classe a4, sono composte da salone, cucina, tre camere, due bagni, garage e vano tecnico lavanderia, con possibilità di massima personalizzazione in base alle proprie esigenze. la planimetria è puramente illustrativa.prezzi a partire da 450.000 euro. Per ulteriori informazioni rivolgersi in ufficio. Rif. L3.




Caratteristiche immobile:
Codice inserzione: 1756078680
Rif. Annuncio: L3VRG
Provincia: Bologna
Comune: Sant'Agata Bolognese
Superficie (Mq) : 650 Mq.
Tipo immobile: Terreni

Costi:
Prezzo € 450.000


Efficienza energetica: