home page > Annunci immobiliari in Italia > Emilia-Romagna > Bologna > Sasso Marconi > appartamenti in vendita > Scheda immobile

Appartamento in vendita a Sasso Marconi

COMPILA IL MODULO SOTTOSTANTE PER RICEVERE MAGGIORI INFORMAZIONI







Invia la richiesta ad altre agenzie
Accetto il trattamento dei miei dati



Mondore srl

Via castiglione 274
40121 Bologna

051842283    Riferimenti: Agenzia Sasso Marconi

Sasso Marconi
Prezzo: € 245.000
F
3
2
Ultimo piano



Descrizione:
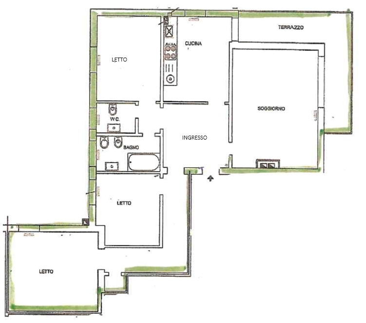
Sasso marconi centralissimo a soli 100 metri dalla piazza proponiamo in vendita in piccola palazzina in pietra vista di sole 4 unità appartamento al primo ed ultimo piano composto da ingresso, sala, con balcone, cucina abitabile, 3 camere matrimoniali, 2 bagni, ripostiglio e ampia cantina.vi è una parte comune dove si trova una tavernetta, un bagno, una cantina e ripostiglio.richiesta €245.000oltre a garage a €18.000




Caratteristiche immobile:
Codice inserzione: 1771991069
Rif. Annuncio: SM245GT1
Provincia: Bologna
Comune: Sasso Marconi
Tipo immobile: Appartamento
Anno costruzione/ristrutturazione: 1965
Piano: Ultimo piano
Camere: 3
Garage: Singolo
Tipologia giardino : Condominiale
Bagni: 2

Costi:
Prezzo € 245.000


Efficienza energetica:
Classe energetica: F
Indice di prestazione energetica (EPgl): 136.6 kWh/mq annui
Riscaldamento: centralizzato