home page > Annunci immobiliari in Italia > Emilia-Romagna > Bologna > Vergato > Case e ville indipendenti in vendita > Scheda immobile

Case e ville indipendenti in vendita a Vergato

COMPILA IL MODULO SOTTOSTANTE PER RICEVERE MAGGIORI INFORMAZIONI







Invia la richiesta ad altre agenzie
Accetto il trattamento dei miei dati



Ica immobiliare

Via brugnoli, 19/c
40121 Bologna

0516492964    Riferimenti: Anna

Vergato
Prezzo: € 85.000
7
400



Descrizione:
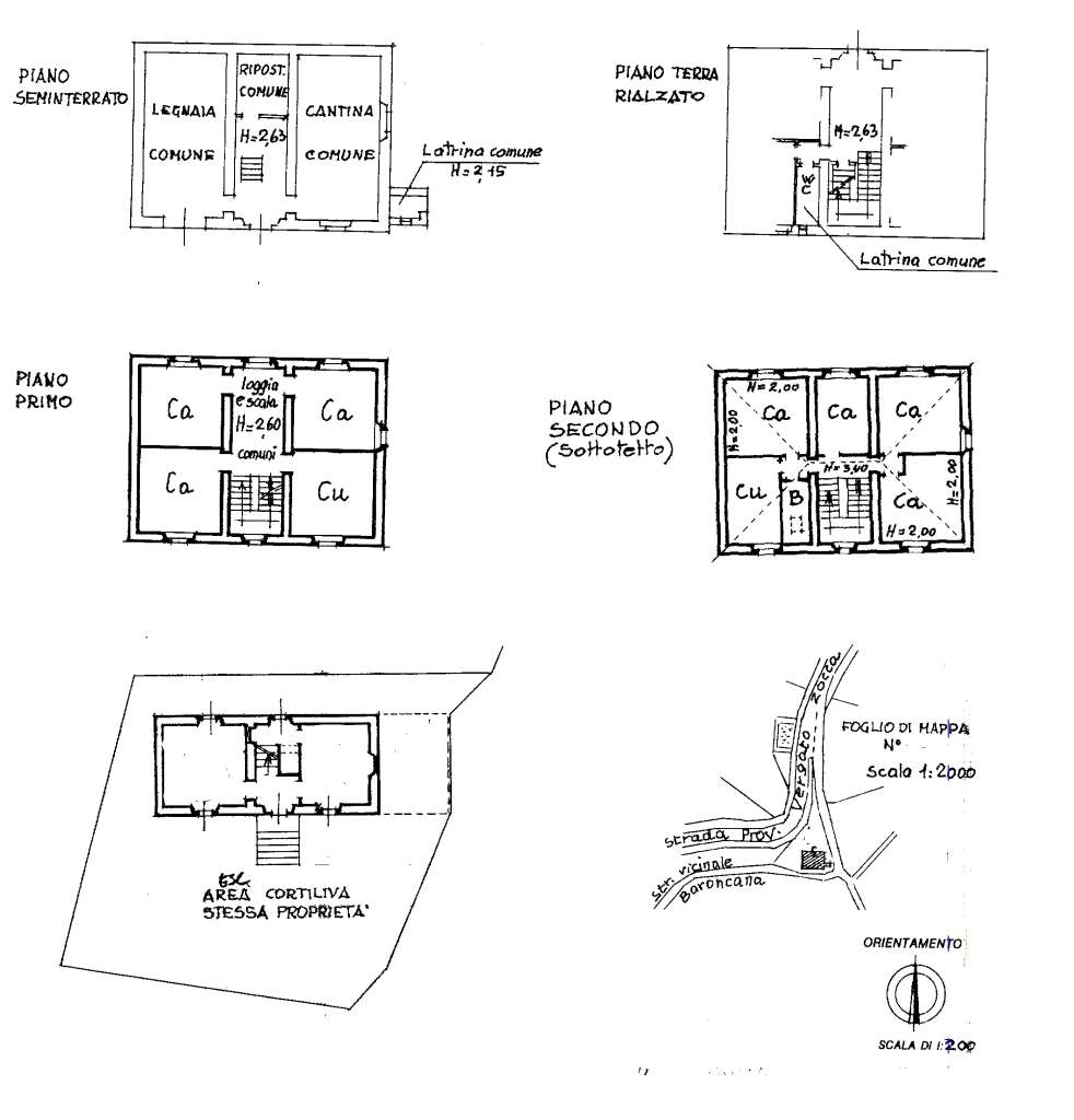
A 5 min da castel d'aiano e 20 min da vergato - villa da ristrutturare palazzo libero subito, immersa nel verde villa di 400mq su più livelli con circa 200 mq di area cortiliva, ottima per 2/3 nuclei familiari.possibilità di utilizzo come b&b e strutture ricettivetetto ottimamente tenuto 85.000€classe energetica: in fase di valutazione




Caratteristiche immobile:
Codice inserzione: 1711325443
Rif. Annuncio: V002252
Provincia: Bologna
Comune: Vergato
Superficie (Mq) : 400 Mq.
Tipo immobile: Case e ville indipendenti
Camere: 7

Costi:
Prezzo € 85.000


Efficienza energetica: