0516836459
Descrizione:
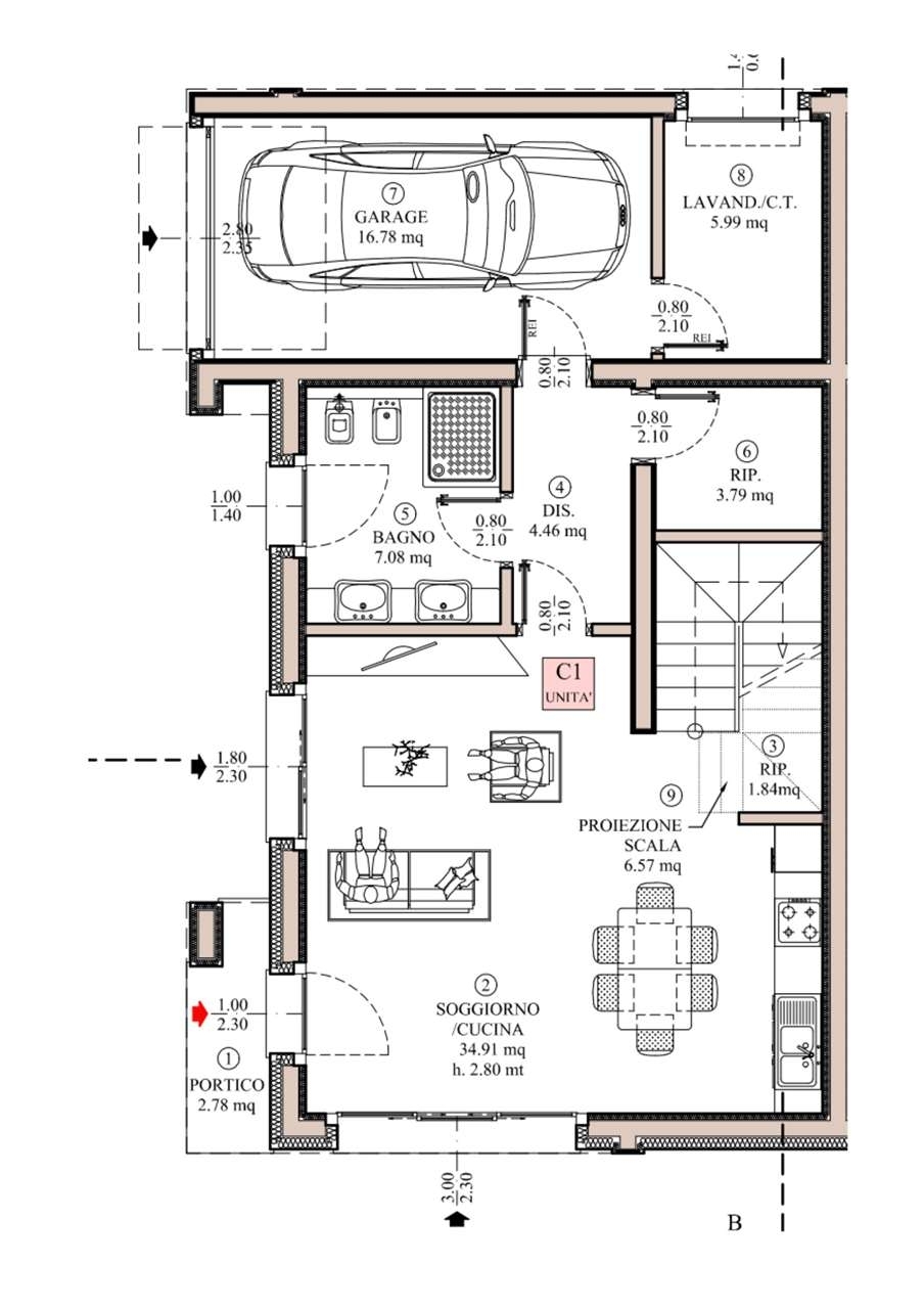
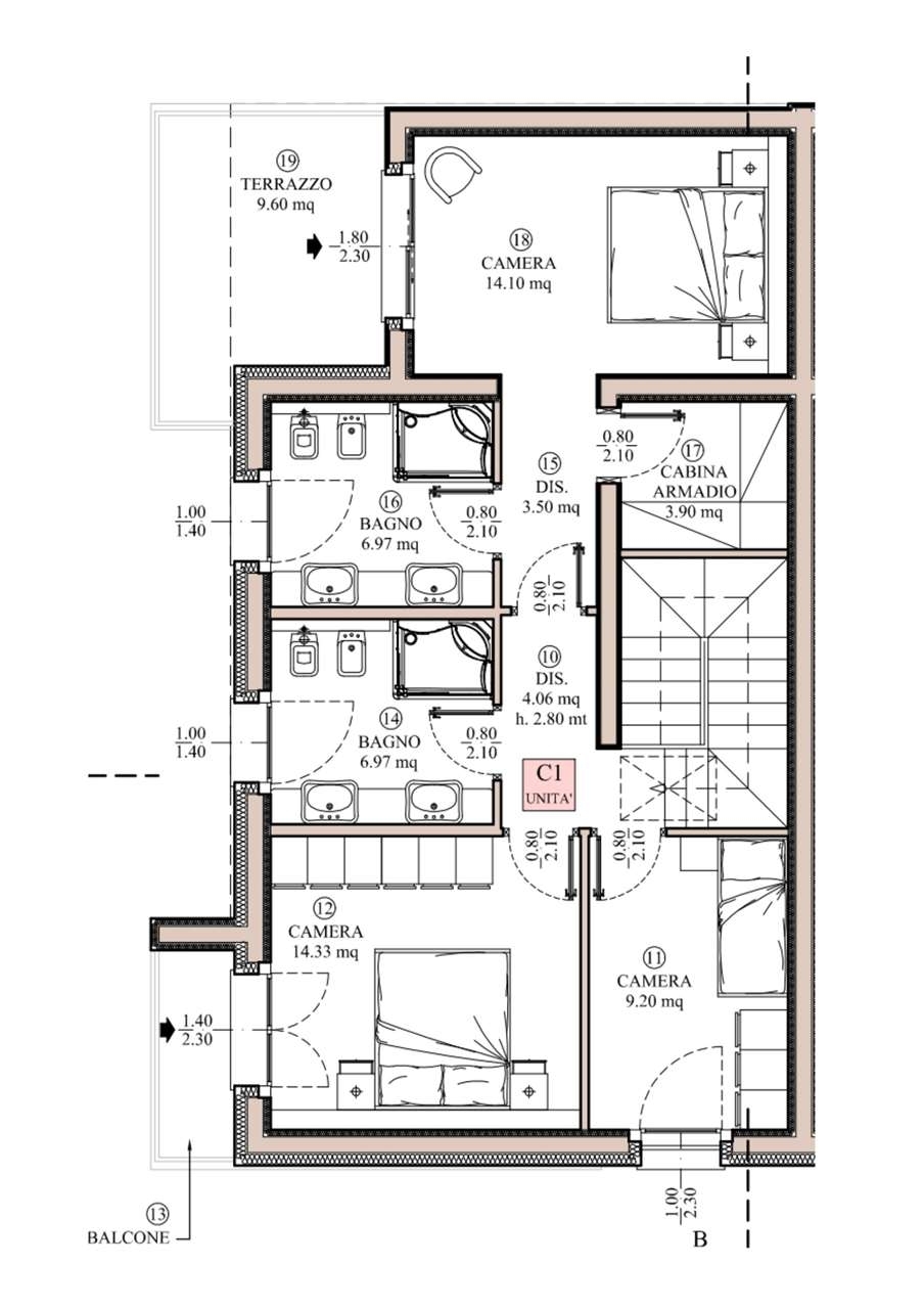
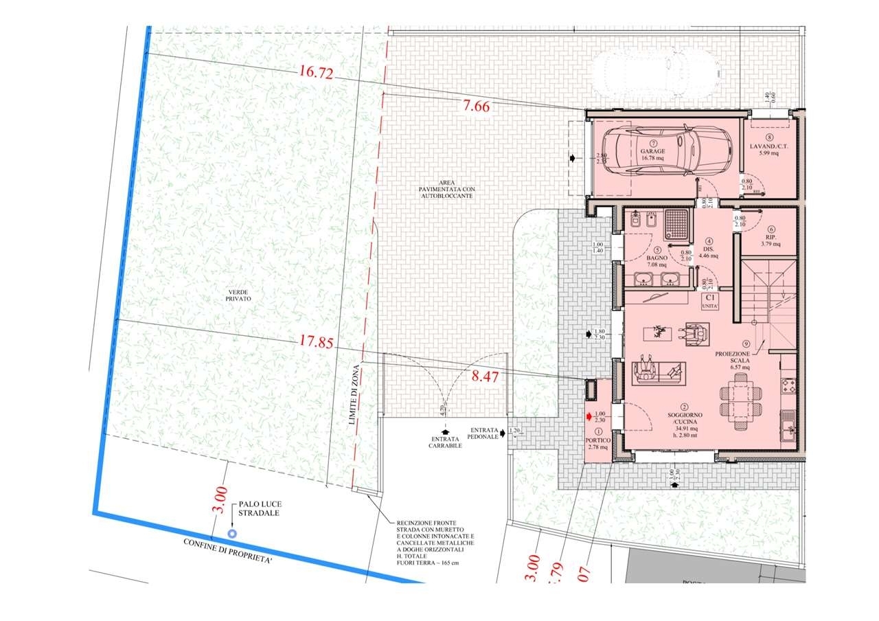
🏡 villette moderne immersa nel verde nuova costruzione 🌿" cento (fe) fraz. Corporenoscopri un nuovo modo di vivere!nel cuore della campagna, a pochi minuti dalla città, nascono queste esclusive villette bifamiliari di nuova costruzione. Un progetto moderno, sostenibile e pensato per offrire il massimo comfort.✨ caratteristiche principali:€ ville indipendenti con giardino privato€ finiture di pregio e design contemporaneo€ zona giorno open space con cucina a vista€ ampia zona living con affaccio sul giardino€ 2/3 camere da letto matrimoniali€ cabina armadio e bagno en-suite€ pavimenti in gres effetto cemento e dettagli eleganti€ grandi vetrate per luce naturale tutto il giorno€ impianto fotovoltaico per il massimo risparmio energetico€ classe energetica a4🌳 location tranquilla e immersa nel verde, perfetta per chi cerca privacy, qualità costruttiva e uno stile di vita moderno.🚗 posto auto privato incluso." contattaci oggi stesso per fissare un appuntamento o ricevere il capitolato completo!" "matteo 🌐 energetica:
Codice inserzione: | 1756768314 |
Rif. Annuncio: | 1003-737 C1 |
Provincia: | Ferrara |
Comune: | Cento |
Superficie (Mq) : | 200 Mq. |
Tipo immobile: | Case e ville a schiera |
Camere: | 3 |
Prezzo | € 423.000 |