home page > Annunci immobiliari in Italia > Emilia-Romagna > Ferrara > Voghiera > appartamenti in vendita > Scheda immobile

Appartamento in vendita a Voghiera

COMPILA IL MODULO SOTTOSTANTE PER RICEVERE MAGGIORI INFORMAZIONI







Invia la richiesta ad altre agenzie
Accetto il trattamento dei miei dati



Le case intermedia

Via darsena, 67
44121 Ferrara

0532.765367

Voghiera
Prezzo: € 70.000
2
1
145



Descrizione:
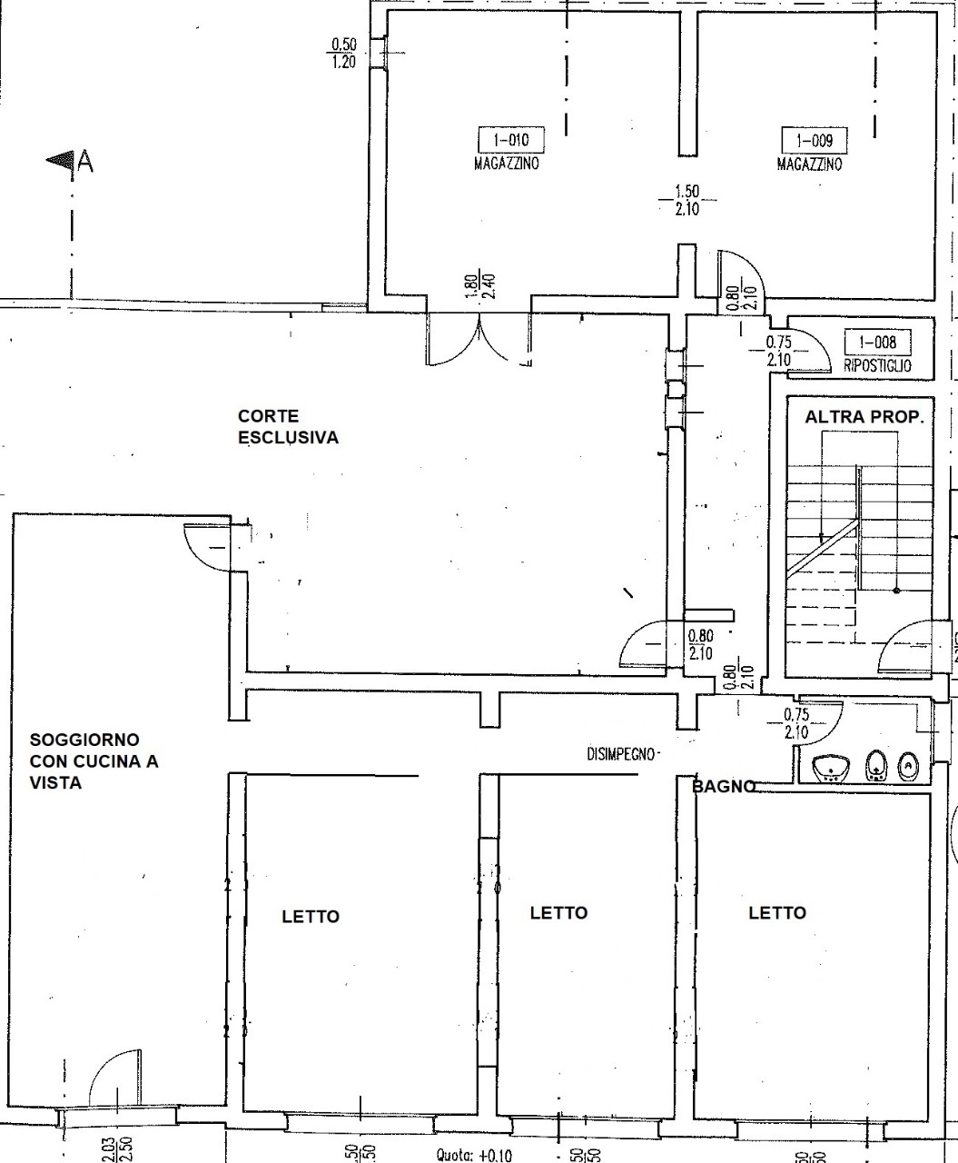
Voghiera a 10 minuti da ferrara ottimo appartamento indipendente (senza barriere architettoniche) parzialmente da riattare e personalizzare al piano terra di mq. 140 luminoso con 2/3 letto. scoperto esclusivo, 2 ampie cantine di mq. 50. posto auto. Ristrutturato nel '94 con pavimenti in monocottura. Soffitti lignei. Cl. En. In fase di realizzo euro 70.000,00 rif. Int051




Caratteristiche immobile:
Codice inserzione: 1740678306
Rif. Annuncio: INT051
Provincia: Ferrara
Comune: Voghiera
Superficie (Mq) : 145 Mq.
Tipo immobile: Appartamento
Camere: 2
Arredato:
Bagni: 1

Costi:
Prezzo € 70.000


Efficienza energetica: