home page > Annunci immobiliari in Italia > Emilia-Romagna > Forlì-Cesena > Cesena > appartamenti in vendita > Scheda immobile

Appartamento in vendita a Cesena

COMPILA IL MODULO SOTTOSTANTE PER RICEVERE MAGGIORI INFORMAZIONI







Invia la richiesta ad altre agenzie
Accetto il trattamento dei miei dati



Immobili cappelli srl

Via emilia per cesena 150
47034 Forlimpopoli (FC)

0543745904    0543471093

Cesena
Prezzo: € 489.000
A1
3
2
106
98



Descrizione:
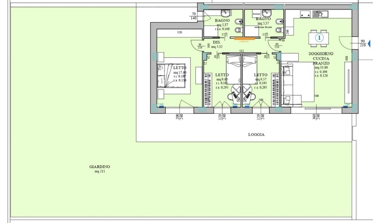
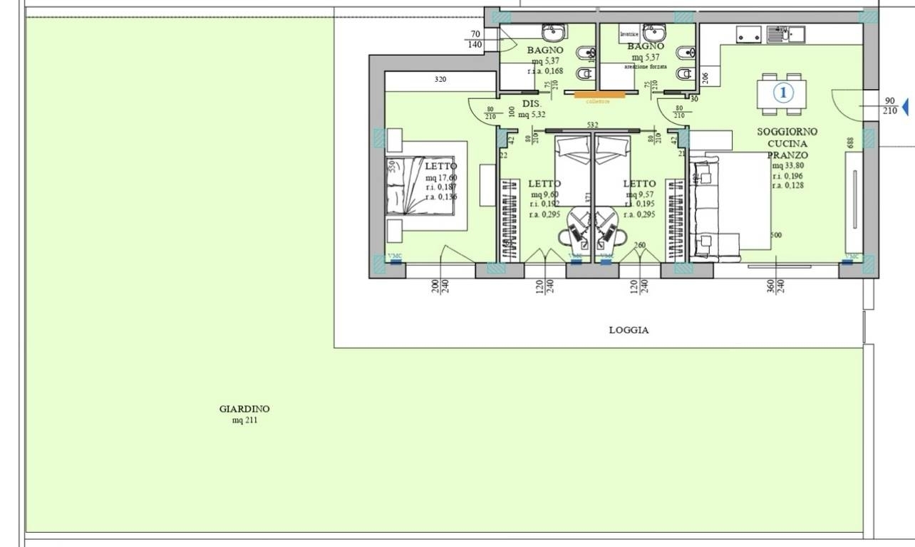
Cesena san mauro in valle nuovo complesso residenziale di prossima realizzazione a poca distanza dal centro in un'area molto servita. appartamenti con ottime finiture ad alta efficienza energetica al piano terra con giardino, oppure al piano primo e secondo con loggia di 40 mq, serviti da ascensore, oppure attico con terrazzo panoramico di mq 140. le abitazioni sono realizzate in opera con un'altissima efficienza sismica ed energetica (classe a) con tetto in legno ventilato, riscaldamento a pavimento, pannelli fotovoltaici 4 kw per ogni appartamento, ventilazione meccanica controllata, impianto di climatizzazione e d'allarme installato, infissi esterni in pvc con vetri a taglio termico e tapparelle elettriche, impianto di aspirazione centralizzata e cassetta di sicurezza. possibilità di personalizzazione degli interni nelle finiture e negli spazi. Ogni unità abitativa dispone di garage e posti auto. Ideale per famiglie che ricercano ampi spazi interni ed esterni abbinati all'efficienza e al comfort che offrono le costruzioni nuove. Fine lavori gennaio 2026. Appartamento al piano terra con giardino di 223mq. Gli ampi spazi interni ed esterni permettono un'ottima vivibilità. ingresso su ampio soggiorno con cucina a vista, un comodo disimpegno conduce alla zona notte dove troviamo 3 camere da letto e 2 bagni. Garage. contattaci al oppure rivolgiti alla nostra agenzia di cesena in via mura barriera levante n. 1 per scoprire la tua nuova casa. vuoi davvero arrivare prima degli altri? alcuni immobili selezionati vengono spoilerati in anteprima assoluta fino a 30 giorni prima della pubblicazione sui portali immobiliari. Solo chi ci segue sui social ha accesso a queste opportunità riservate. Non rischiare di perderti la casa giusta al momento giusto. Classe energetica: a




Caratteristiche immobile:
Codice inserzione: 1758159101
Rif. Annuncio: AN1
Provincia: Forlì-Cesena
Comune: Cesena
Zona: San Mauro in Valle  
Superficie (Mq) : 106 Mq.
Tipo immobile: Appartamento
Stato immobile: nuovo
Piano: Piano terra
Camere: 3
Garage: Singolo
Bagni: 2

Costi:
Prezzo € 489.000


Efficienza energetica:
Classe energetica: A1
Riscaldamento: autonomo