home page > Annunci immobiliari in Italia > Emilia-Romagna > Forlì-Cesena > Cesena > appartamenti in vendita > Scheda immobile

Appartamento in vendita a Cesena

COMPILA IL MODULO SOTTOSTANTE PER RICEVERE MAGGIORI INFORMAZIONI







Invia la richiesta ad altre agenzie
Accetto il trattamento dei miei dati



Passerini immobiliare

Via mura barriera ponente 13
47521 Cesena (FC)

0547.24743    Riferimenti: Gabriele Passerini

Cesena
Prezzo: info in agenzia
A4
3
2
150
98
1



Descrizione:
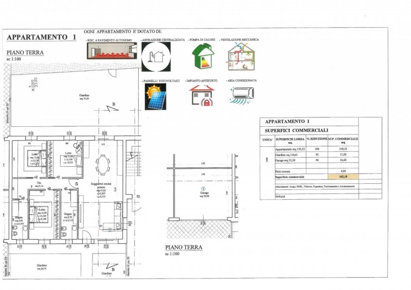
Rif 2492 a cesena nella fascia del centro urbano vendiamo appartamenti di nuova costruzione in consegna nel 2027.gli appartamenti saranno consegnati completi di ; pompa di calore, fotovoltaico, impianto d' allarme, aria condizionata, aspirazione centralizzata, ventilazione meccanica controllata. La composizione degli appartamenti è la seguente ; ingresso indipendente da giardino,sala e cucina in open space di circa 45 mq, 2 bagni, 3 camere, garage 40 mq circa.per info chiamare stefano ape a4




Caratteristiche immobile:
Codice inserzione: 1774496125
Rif. Annuncio: 2492
Provincia: Forlì-Cesena
Comune: Cesena
Superficie (Mq) : 150 Mq.
Tipo immobile: Appartamento
Stato immobile: nuovo
Anno costruzione/ristrutturazione: 2026
Piano: Piano terra
Camere: 3
Garage: Doppio
Posti auto scoperti: 1 posto auto
Bagni: 2
Terrazze: 1

Costi:
Prezzo info in agenzia


Efficienza energetica:
Classe energetica: A4
Riscaldamento: autonomo a pavimento