home page > Annunci immobiliari in Italia > Emilia-Romagna > Forlì-Cesena > Cesena > Negozi uffici capannoni in vendita > Scheda immobile

Negozi uffici capannoni in vendita a Cesena

COMPILA IL MODULO SOTTOSTANTE PER RICEVERE MAGGIORI INFORMAZIONI







Invia la richiesta ad altre agenzie
Accetto il trattamento dei miei dati



Quimmo agency

Via galileo galilei 6
48018 Faenza (RA)

0299944698

Cesena
Prezzo: € 596.000
3
521



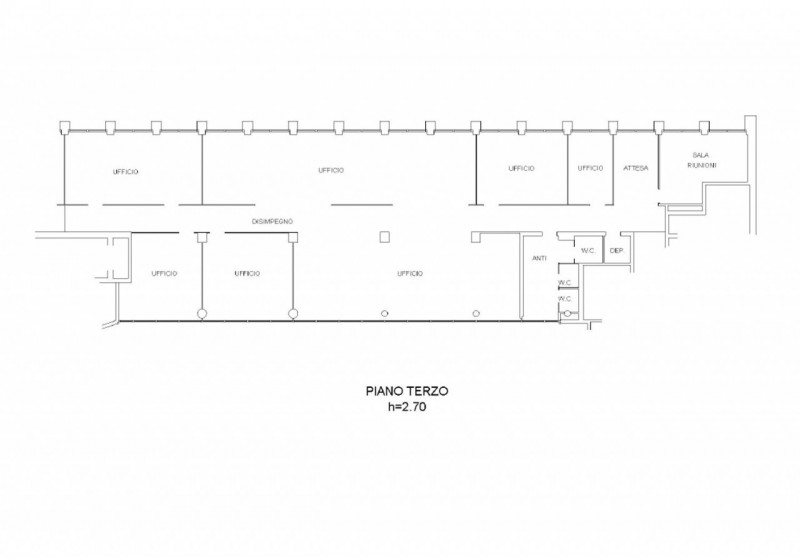
Descrizione:
Proponiamo in vendita un ufficio situato a cesena, in piazza leonardo sciascia, all'interno di un moderno complesso commerciale/direzionale di cinque piani fuori terra.l'immobile è posto al piano terzo ed è caratterizzato da una distribuzione funzionale degli spazi, composta da nove vani direzionali, comprensivi di sala riunioni, sala d'attesa e servizi igienici. La conformazione interna lo rende particolarmente adatto a studi professionali, società di servizi o attività direzionali che necessitano di ambienti ben organizzati e rappresentativi.completano la proprietà i posti auto posti l piano seminterrato.il contesto è ordinato, facilmente accessibile e inserito in una zona ben collegata della città, con ampia presenza di uffici e attività terziarie.l'unità risulta attualmente locata con regolare contratto, rappresentando un'interessante opportunità di investimento a reddito.




Caratteristiche immobile:
Codice inserzione: 1774324219
Rif. Annuncio: 2638276
Provincia: Forlì-Cesena
Comune: Cesena
Superficie (Mq) : 521 Mq.
Tipo immobile: Negozi uffici capannoni
Bagni: 3

Costi:
Prezzo € 596.000


Efficienza energetica:
Riscaldamento: centralizzato