Descrizione:
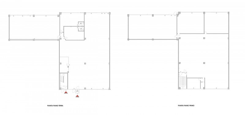
A cesena zona sant'egidio vendiamo capannone di totali circa 1.600 mq commerciali su 2 piani con uffici/servizi su entrambe i piani e 2 corti private di totali 500 mq.l'immobile si presenta in ottime condizioni con riscaldamento e aria condizionata.per info roberto sono specializzato in immobili commerciali--- capannoni, uffici, negozi ma anche attività attive o inattive ---chiamatemi direttamente per sottoporvi panoramica di immobili idonei.oppure scrivetemi a le seguenti informazioni:- attività o uso che si intende svolgere- tipologia di immobile- mq necessari di interno specificando quanti uffici e altri vani- mq di esterno se necessari (corte privata o fronte strada di passaggio..)- zona ideale- budget massimo disponibilevi contatterò quanto prima con una panoramica di propostegrazieape d