home page > Annunci immobiliari in Italia > Emilia-Romagna > Forlì-Cesena > Cesena > Negozi uffici capannoni in vendita > Scheda immobile

Negozi uffici capannoni in vendita a Cesena

COMPILA IL MODULO SOTTOSTANTE PER RICEVERE MAGGIORI INFORMAZIONI







Invia la richiesta ad altre agenzie
Accetto il trattamento dei miei dati



Quimmo agency

Via galileo galilei 6
48018 Faenza (RA)

0299944698

Cesena
Prezzo: € 185.000
2
132



Descrizione:
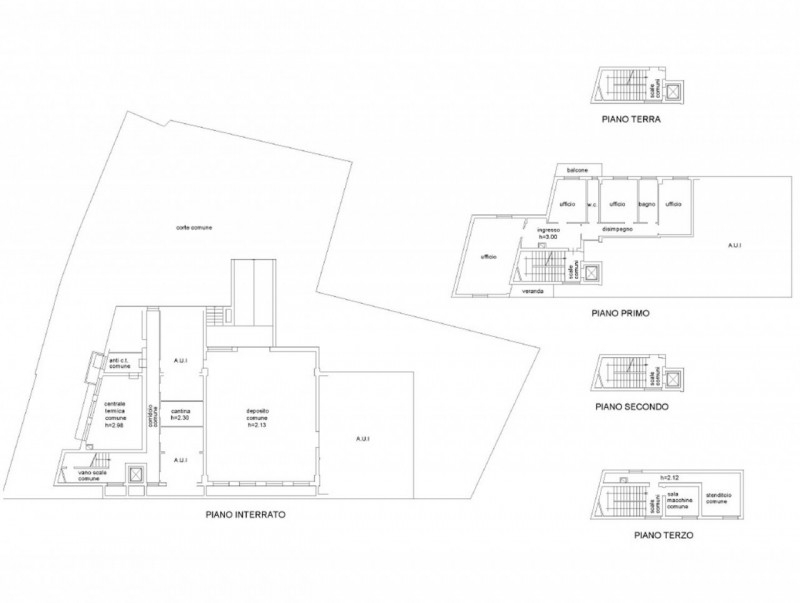
Proponiamo in vendita un ufficio situato a cesena, in via federico comandini, in una zona comoda, ben servita e facilmente accessibile. L'immobile si sviluppa interamente al piano primo ed è composto da quattro vani ad uso ufficio, ingresso disimpegno due bagni una veranda e un balcone, offrendo spazi funzionali e ben organizzati per attività professionali.completano la proprietà una cantina e un deposito carrabile comune, che ne aumentano la fruibilità e il comfort operativo. La posizione strategica, a breve distanza dal centro cittadino e con ottimi collegamenti alla viabilità principale, rende questa soluzione particolarmente interessante per chi desidera operare in un contesto urbano dinamico e ben collegato.




Caratteristiche immobile:
Codice inserzione: 1772509706
Rif. Annuncio: 2638099
Provincia: Forlì-Cesena
Comune: Cesena
Superficie (Mq) : 132 Mq.
Tipo immobile: Negozi uffici capannoni
Stato immobile: usato
Bagni: 2

Costi:
Prezzo € 185.000


Efficienza energetica:
Riscaldamento: centralizzato