home page > Annunci immobiliari in Italia > Emilia-Romagna > Forlì-Cesena > Cesenatico > appartamenti in vendita > Scheda immobile

Appartamento in vendita a Cesenatico

COMPILA IL MODULO SOTTOSTANTE PER RICEVERE MAGGIORI INFORMAZIONI







Invia la richiesta ad altre agenzie
Accetto il trattamento dei miei dati



3h immobiliare srl

Viale giovanni pascoli 118
47921 Rimini

05411833112

Cesenatico
Prezzo: € 375.000
1
2
40



Descrizione:
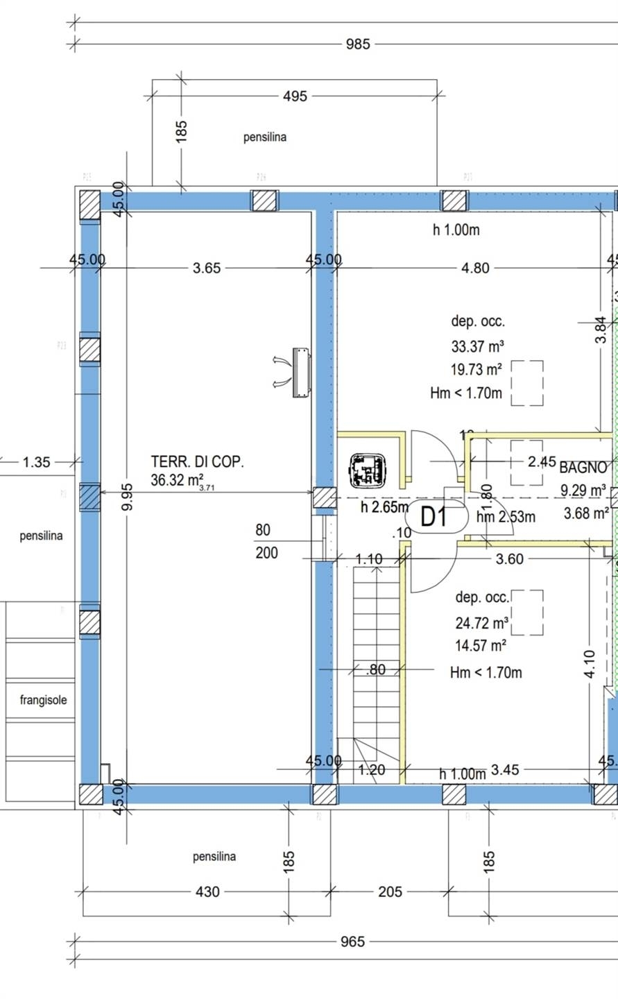
Prossima realizzazione splendidi appartamenti in vendita a cesenatico, nella zona di borella, in consegna nella prima metà del 2025.in particolare l'appartamento d1 di testa con ingresso indipendente al primo piano composto da ampia zona giorno con angolo cottura a cui si accede ad uno spazioso balcone, un bagno finestrato con box doccia e camera matrimoniale con piccolo balconcino. Al piano superiore è presente il sottotetto con altezza al culmine di utilizzabile come due ulteriori camere da letto o studio, un bagno con veluz e box doccia ed una terrazza di oltre 35 mq. Sono compresi nel prezzo anche un garage di 15 mq ed una cantina di 8 mq. La palazzina è costruita in classe energetica a4 e presenta caratteristiche uniche ed esclusive come la qualità dell'aria interna garantita da impianto di ventilazione meccanica controllata, riscaldamento a pavimento, elevato isolamento acustico, predisposizione impianto di allarme, infissi doppio vetro in pvc, portone blindato, videocitofono. La struttura si trova in ottima zona strategica, residenziale e tranquilla ma rimanendo a pochi minuti dal mare. Classe energetica: a4




Caratteristiche immobile:
Codice inserzione: 1735620777
Rif. Annuncio: 9593RA95807
Provincia: Forlì-Cesena
Comune: Cesenatico
Zona: Borella  
Superficie (Mq) : 40 Mq.
Tipo immobile: Appartamento
Stato immobile: nuovo
Camere: 1
Garage: Singolo
Bagni: 2
Terrazze: 2

Costi:
Prezzo € 375.000


Efficienza energetica: