home page > Annunci immobiliari in Italia > Emilia-Romagna > Forlì-Cesena > Forlì > appartamenti in vendita > Scheda immobile

Appartamento in vendita a Forlì

COMPILA IL MODULO SOTTOSTANTE PER RICEVERE MAGGIORI INFORMAZIONI







Invia la richiesta ad altre agenzie
Accetto il trattamento dei miei dati



Romagna case

Via brisighella, 7
47521 Cesena (FC)

0543740005

Forlì
Prezzo: € 169.000
2
2
75
2
1



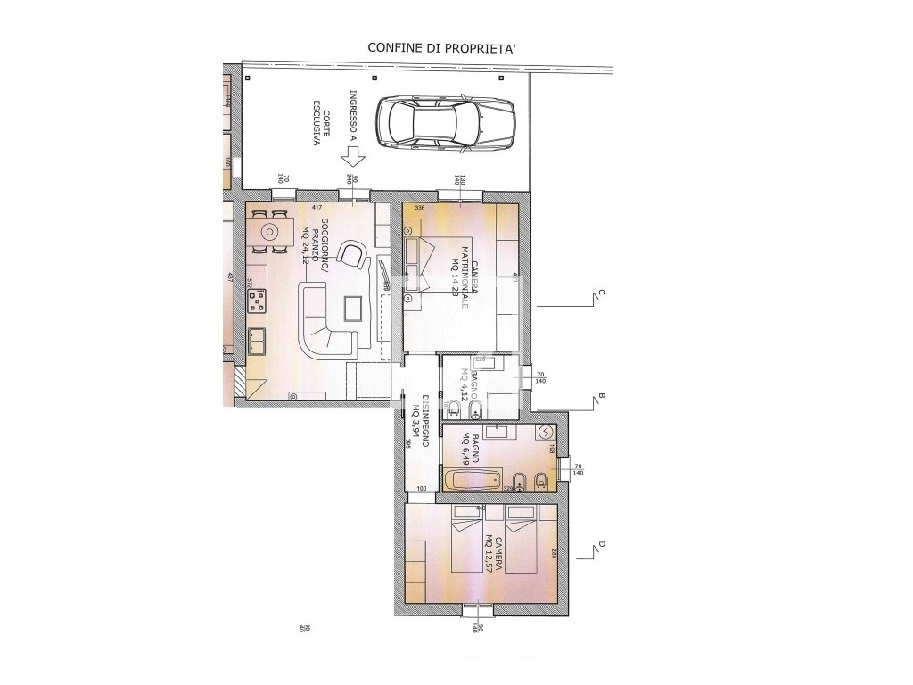
Descrizione:
'casale dei platani 'forli' - carpinelloa carpinello posizione strategica e di collegamento soli 3 km dal centro commerciale punta di ferro e autostrada , 5 km da forlimpopoli , 2 km dalla tangenziale .proponiamo in vendita in contesto di 5 unità in corso di ristrutturazione completa , appartamento trilocale al piano terra con giardino privato e posto auto .la soluzione si sviluppa interamente al piano terra con possibilità di accedere sia dall ' ingresso comune che dal giardino di proprietà .soggiorno open space da 24 mq con finestra e porta finestra per accedere alla corte privata, disimpegno zona notte con 2 bagni , uno da 4 mq finestrato con doccia , il secondo da 6,5 mq finestrato con possibilità di installare la vasca da bagno .2 camere da letto matrimoniali .gli impianti previsti sono autonomi con caldaia a condensazione e riscaldamento a pavimento .infissi in pvc doppio vetro di ultima generazione.esternamente l' edificio sarà dotato di cappotto termico .consegna entro fine anno , nuovo solo da arredare- si valutano permute




Caratteristiche immobile:
Codice inserzione: 1680839524
Rif. Annuncio: 10207266
Provincia: Forlì-Cesena
Comune: Forlì
Superficie (Mq) : 75 Mq.
Tipo immobile: Appartamento
Stato immobile: ristrutturato
Anno costruzione/ristrutturazione: 1900
Piano: 2
Camere: 2
Stato al rogito: Libero
Posti auto scoperti: 1 posto auto
Tipologia giardino : Condominiale
Bagni: 2

Costi:
Prezzo € 169.000


Efficienza energetica:
Riscaldamento: autonomo a pavimento