home page > Annunci immobiliari in Italia > Emilia-Romagna > Forlì-Cesena > Forlì > appartamenti in vendita > Scheda immobile

Appartamento in vendita a Forlì

COMPILA IL MODULO SOTTOSTANTE PER RICEVERE MAGGIORI INFORMAZIONI







Invia la richiesta ad altre agenzie
Accetto il trattamento dei miei dati



Kapital immobiliare srl

P.zza falcone borsellino 23
47121 Forlì (FC)

0543.65105

Forlì
Prezzo: € 420.000
3
2
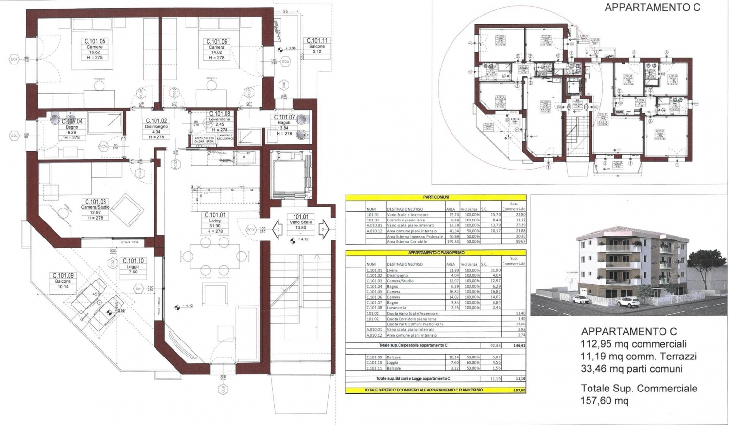
157
1



Descrizione:
Zona grandi italiani, nelle immediate vicinanze dal centro, proponiamo secondo gli ultimi standard di moderna costruzione: classe a4, appartamento composto da ampio soggiorno con cucina a vista con affaccio ad ampia loggia di 18 mq., disimpegno notte, tre camere da letto, due bagni, oltre alla cantina e il posto auto esterno. Riscaldamento a pavimento, impianto di climatizzazione e di antifurto, l'impianto domotica è gestibile con app dal cellulare ventilazione meccanica controllata con costante ricambio d' aria e filtraggio, ed energia green generata da pannelli fotovoltaici con 3 kw. Per ogni appartamento. Nell' edificio saranno presenti solo 8 unità abitative, con la presenza di balconi e ampi terrazzi. Ogni unità immobiliare sarà inoltre corredata da cantine. Possibilità di box auto dotati di colonnine per la ricarica di auto elettriche, la zona ove sorgerà il nuovo edificio si è rivalutata nel tempo, tanto da essere considerata una delle zone più performanti in termini di percentuale di crescita del valore degli immobili e comoda con tutti i mezzi di comunicazione e non ultimo vicina ai poli universitari. Informazioni presso i nostri uffici. La consegna è prevista per ottobre 2025. Rif. 4086 eu. 420.000 classe energetica: a4




Caratteristiche immobile:
Codice inserzione: 1724814688
Rif. Annuncio: 4086
Provincia: Forlì-Cesena
Comune: Forlì
Zona: Semicentro  
Superficie (Mq) : 157 Mq.
Tipo immobile: Appartamento
Stato immobile: nuovo
Piano: 1
Camere: 3
Bagni: 2
Terrazze: 1

Costi:
Prezzo € 420.000


Efficienza energetica: