home page > Annunci immobiliari in Italia > Emilia-Romagna > Forlì-Cesena > Forlì > Negozi uffici capannoni in vendita > Scheda immobile

Negozi uffici capannoni in vendita a Forlì

COMPILA IL MODULO SOTTOSTANTE PER RICEVERE MAGGIORI INFORMAZIONI







Invia la richiesta ad altre agenzie
Accetto il trattamento dei miei dati



Kapital immobiliare srl

P.zza falcone borsellino 23
47121 Forlì (FC)

0543.65105

Forlì
Prezzo: € 700.000
G
7
1270
Ultimo piano



Descrizione:
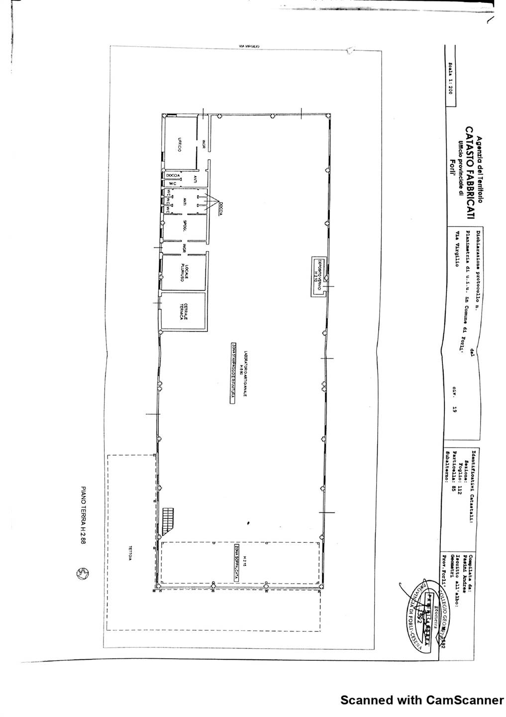
Villanova, proponiamo capannone di 1200 mq. H. Variabile da 7,00 fino 8,00, con uffici, spogliatoi, bagni, per un 70 mq. E un piazzale che circonda l'immobile di circa 800 mq. Ape in elaborazione. Rif. 4454. Euro 700.000 classe energetica: g




Caratteristiche immobile:
Codice inserzione: 1759892035
Rif. Annuncio: 4456
Provincia: Forlì-Cesena
Comune: Forlì
Superficie (Mq) : 1270 Mq.
Tipo immobile: Negozi uffici capannoni
Stato immobile: usato
Piano: Ultimo piano
Arredato:
Bagni: 7

Costi:
Prezzo € 700.000


Efficienza energetica:
Classe energetica: G
Riscaldamento: autonomo